ADVANTAGES
MODELS
Individual appliances
Wall-mounted model - makes floor cleaning easy
Floor-standing model - quick to install
Flush wall-mounted model - to keep journeys short
Cabinet model - makes more work surface space available
We have the right solution for you
This cabinet model is the perfect addition to any utility room set-up, be it pre-existing or completely new. Compact dimensions make for a good fit underneath the work surface – maximising the work surface space available.
When combined with additional items like shelves to be installed above the washer-disinfector, this version creates an excellent environment for hygienically safe care utensil cleaning and storage.
For more product information please contact your sales partner.
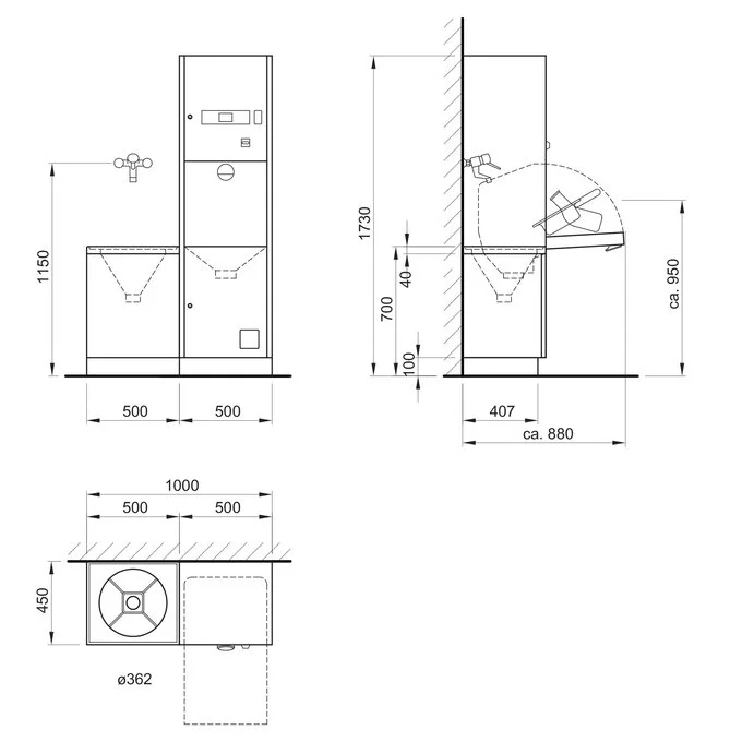
Making life easier: simply pop in place the TopLine 20 cleaning and disinfection appliance and plug it in. That means you can make the best use of existing utility connections and keep your utility room up and running with virtually no disruption. The TopLine 20 cleaning and disinfection appliance is also amazingly practical due to the speed of installation, using a plinth for floor mounting. Convenient working height and carefully calculated dimensions (500 mm x 1,730 mm) make for outstanding ergonomic credentials and hygiene safety. That makes it safer and easier to use, boosting staff motivation and fulfilling health and safety requirements.
And this is the only respirator washer of its size that can clean and disinfect regulators even while they are still pressurised. TopClean M sets new standards in efficiency, speed and flexibility, cleaning and disinfecting up to 40 masks or 80 regulators an hour in an innovative chemo-thermal disinfection process. Designed to be ergonomic and easy to use, the respirator washer also offers reliable and reproducible hygienic cleaning results which fully adhere to both safety guidelines and mask manufacturers' instructions – just some of the many benefits offered by TopClean M.
TopClean M can simplify your workflow and increase the productivity of your equipment workshop so that the equipment your team needs for their next call-out will be ready for action in no time. It's never been easier to ensure you stick to the Personal Protective Equipment (PPE) guidelines.
Developed and tested in collaboration with specialists from the fire service. The idea behind the TopClean M respirator washer evolved directly from real-life fire service operations. That's why TopClean M is so perfectly suited to the special requirements of respiratory protection equipment cleaning and disinfection – and why it is such a great choice for any respiratory equipment workshop.
This washer-disinfector can be installed and ready to go in the wink of an eye: perfect if a quick setup is what you need. This version allows you to make the best use of existing utility connections and keep your utility room up and running with virtually no disruption.
For more product information please contact your sales partner.
The layout of this small combined care unit could not be any more compact. Not to mention all the usual TOPIC hygiene benefits (A0 value control system in line with DIN EN ISO 15883) as well as the space-space saving dimensions of 1,000 mm x 1,830/700 mm (from the floor). Ideal for reliable emptying, cleaning and disinfection of bedpans, urine bottles and potties. This makes your carers' work easier and improves the safety of staff and residents alike. Allowing staff members to focus on care instead of cleaning chores.
This cleaning and disinfection appliance features an integrated, stainless steel slop sink, making it an ideal small combined care unit. It measures just 1.0 m in width, making it a space-saving installation which can easily slot in with the existing equipment in your utility room. The funnel-shaped slop sink unit for hygiene purposes comes with no flushing rim, i.e. with no slit for the water. Instead, a spiral water jet acts as the optimum self-cleaning feature for the slop sink funnel. If the slop sink is out of use for an extended period, an optional time switch is available to start slop sink flushing automatically once a day.
Top-notch standards of hygiene and safety are absolutely essential in hospital wards and care homes. That’s why the new TopClean 60 multi-washer is designed to clean and disinfect just about anything you might find on a ward. From wash basins, trays and vases to operating theatre boots and even children’s toys, this all-round washer-disinfector offers a simple, fast and reliable means of getting things perfectly clean. With the option of choosing between thermal or chemo-thermal disinfection, you can also wash heat-sensitive materials such as operating theatre boots thoroughly and hygienically.
The innovative TopClean 60 multi-washer is the perfect way to meet hygiene requirements while simultaneously fulfilling work safety guidelines and leveraging maximum value from your investment. It can be used to clean and disinfect equipment and utensils fast and hygienically in a wide range of settings – from hospitals and nurseries to beauty salons.
Making life easier: simply pop in place the TopLine 20 cleaning and disinfection appliance and plug it in. That means you can make the best use of existing utility connections and keep your utility room up and running with virtually no disruption. The TopLine 20 cleaning and disinfection appliance is also amazingly practical due to the speed of installation, using a plinth for floor mounting. Convenient working height and carefully calculated dimensions (500 mm x 1,730 mm) make for outstanding ergonomic credentials and hygiene safety. That makes it safer and easier to use, boosting staff motivation and fulfilling health and safety requirements.
Top-notch standards of hygiene and safety are absolutely essential in hospital wards and care homes. That’s why the new TopClean 60 multi-washer is designed to clean and disinfect just about anything you might find on a ward. From wash basins, trays and vases to operating theatre boots and even children’s toys, this all-round washer-disinfector offers a simple, fast and reliable means of getting things perfectly clean. With the option of choosing between thermal or chemo-thermal disinfection, you can also wash heat-sensitive materials such as operating theatre boots thoroughly and hygienically.
The innovative TopClean 60 multi-washer is the perfect way to meet hygiene requirements while simultaneously fulfilling work safety guidelines and leveraging maximum value from your investment. It can be used to clean and disinfect equipment and utensils fast and hygienically in a wide range of settings – from hospitals and nurseries to beauty salons.
The TopLine 10 boasts compact dimensions (500 mm x 1,630 mm) and is mounted on the wall, giving you floor clearance – for even better hygiene in the area surrounding the appliance. This solution makes the area easier to clean and maintain with no tricky corners and nothing in the way. This space-saving cleaning and disinfection appliance is great for tricky spaces where fitting in medical technology can be a challenge. The TopLine 10 is delivered ready to connect. This is the perfect appliance for creating a safer environment for staff, patients and care home residents.
The layout of this small combined care unit could not be any more compact. Not to mention all the usual TOPIC hygiene benefits (A0 value control system in line with DIN EN ISO 15883) as well as the space-space saving dimensions of 1,000 mm x 1,830/700 mm (from the floor). Ideal for reliable emptying, cleaning and disinfection of bedpans, urine bottles and potties. This makes your carers' work easier and improves the safety of staff and residents alike. Allowing staff members to focus on care instead of cleaning chores.
TOPIC small combined care units are designed with a clear focus on quality. They are simple to install, offer comprehensive features, and are easy to integrate in your existing utility room. At 1,000 mm x 1,730/700 mm, this combined unit is somewhat shorter than the TOPIC 10 but still a good, ergonomic working height. It also features an A0 value control system with short, adjustable programme cycles and the cleaning and disinfection process is vapour sealed.
Hygienic workflows in care homes, outstanding ergonomics, and an optimum use of space – that's what you get when you choose the TOPIC 40 small combined care unit. It consists of a cleaning and disinfection appliance, a table top and a hand wash basin. At just 900 mm in width, this petite package packs a powerful punch: a vapour-sealed cleaning and disinfection process, as well as short programme cycles tailored using the A0 value control system as per DIN EN ISO 15883, all of which contribute to improved hygiene in nursing homes.
The TOPIC 10 is quick and easy to install while taking up a minimal amount of space. Simply mount it on the wall, connect it up and it's ready for use! This cleaning and disinfection appliance is the perfect choice if you're planning to modernise or renovate your facility. It is wonderfully easy to use with our ‘one touch’ operating concept. Of course, we never compromise on hygiene safety so the TOPIC 10 features an A0 value control system in line with DIN EN ISO 15883. All of that makes life significantly easier for care staff while simultaneously enhancing both staff and patient safety.
The right hygiene concept in a compact format: the TOPIC cleaning and disinfection appliance as a floor-standing unit. Quick and easy to install, it also takes up a minimal amount of space. We know that just quick installation and ease of use with our ‘one touch’ operating concept won't cut it: hygiene safety cannot suffer. And it doesn't. The programme cycles on the TOPIC can be individually adjusted using the A0 value control system as per DIN EN ISO 15883.
The TOPIC 40 is quick and easy to install and features both thermal and acoustic insulation. At just 900 mm x 900 mm, it is impressively compact and even creates additional work surface space with its table top. All that, and you can still expect everything from this cabinet model that you get from the floor-standing units in the TOPIC range: complete hygiene safety thanks to the A0 value control system as per DIN EN ISO 15883 and our ‘one touch’ operating concept with large membrane keys and clear icons.
Making life easier: simply pop in place the TopLine 20 cleaning and disinfection appliance and plug it in. That means you can make the best use of existing utility connections and keep your utility room up and running with virtually no disruption. The TopLine 20 cleaning and disinfection appliance is also amazingly practical due to the speed of installation, using a plinth for floor mounting. Convenient working height and carefully calculated dimensions (500 mm x 1,730 mm) make for outstanding ergonomic credentials and hygiene safety. That makes it safer and easier to use, boosting staff motivation and fulfilling health and safety requirements.
The TOPIC 10 is quick and easy to install while taking up a minimal amount of space. Simply mount it on the wall, connect it up and it's ready for use! This cleaning and disinfection appliance is the perfect choice if you're planning to modernise or renovate your facility. It is wonderfully easy to use with our ‘one touch’ operating concept. Of course, we never compromise on hygiene safety so the TOPIC 10 features an A0 value control system in line with DIN EN ISO 15883. All of that makes life significantly easier for care staff while simultaneously enhancing both staff and patient safety.
It is a fully automatic solution for cleaning BA masks, regulators, compressed air bottles and SCBA harnesses. The TopClean M cleans and disinfects up to 40 BA masks/80 regulators an hour in an innovative chemo-thermal disinfection process. Regulators are cleaned and disinfected under pressurisation.
The TopClean M sets new standards in speed, flexibility, and efficiency. Designed to be ergonomic and easy to use, the system also offers reliable and reproducible hygienic cleaning results which fully adhere to both safety guidelines and mask manufacturers' instructions. It has never been so easy to stick to respiratory protection guidelines.
The TopClean D is a professional PPE decon machine. Using just 5.8 litres of water per wash cycle, it ensures outstanding cleaning results thanks to its oscillating wash pipes. The benefits for SCBA technicians are clear: the TopClean D saves valuable time and minimises the risk of coming into contact with pathogens, fine toxic particulates and combustion residues.
Machine cleaning of PPE ensures precise compliance with all manufacturer specifications for temperature and chemical dosing.
MEIKO's heads for BA masks ensure that no hazardous particles are transferred from the outside of the mask to the inside.
And with our patented compressed air connection in the wash chamber, you can be equally confident that no water will get inside the regulators.
The TopClean D is a front loader, making it easy to load with the rack pulled out. This ergonomic machine also includes heat recovery to reduce steam emissions, helping you to maintain a pleasant indoor climate in the SCBA workshop.
Uncompromising hygiene and safety are absolutely essential on hospital wards and in care homes. This versatile disinfection appliance will clean and disinfect almost anything on the ward that might need it. Choose between thermal and chemo-thermal disinfection, so you can even hygienically clean heat-sensitive materials like theatre shoes.
The multiwasher reliably delivers on hygiene requirements, occupational safety and economic efficiency.
Making life easier: simply pop in place the TopLine 20 cleaning and disinfection appliance and plug it in. That means you can make the best use of existing utility connections and keep your utility room up and running with virtually no disruption. The TopLine 20 cleaning and disinfection appliance is also amazingly practical due to the speed of installation, using a plinth for floor mounting. Convenient working height and carefully calculated dimensions (500 mm x 1,730 mm) make for outstanding ergonomic credentials and hygiene safety. That makes it safer and easier to use, boosting staff motivation and fulfilling health and safety requirements.
And this is the only respirator washer of its size that can clean and disinfect regulators even while they are still pressurised. TopClean M sets new standards in efficiency, speed and flexibility, cleaning and disinfecting up to 40 masks or 80 regulators an hour in an innovative chemo-thermal disinfection process. Designed to be ergonomic and easy to use, the respirator washer also offers reliable and reproducible hygienic cleaning results which fully adhere to both safety guidelines and mask manufacturers' instructions – just some of the many benefits offered by TopClean M.
TopClean M can simplify your workflow and increase the productivity of your equipment workshop so that the equipment your team needs for their next call-out will be ready for action in no time. It's never been easier to ensure you stick to the Personal Protective Equipment (PPE) guidelines. Developed and tested in collaboration with specialists from the fire service. The idea behind the TopClean M respirator washer evolved directly from real-life fire service operations. That's why TopClean M is so perfectly suited to the special requirements of respiratory protection equipment cleaning and disinfection – and why it is such a great choice for any respiratory equipment workshop.
This cleaning and disinfection appliance features an integrated, stainless steel slop sink, making it an ideal small combined care unit. It measures just 1.0 m in width, making it a space-saving installation which can easily slot in with the existing equipment in your utility room. The funnel-shaped slop sink unit for hygiene purposes comes with no flushing rim, i.e. with no slit for the water. Instead, a spiral water jet acts as the optimum self-cleaning feature for the slop sink funnel. If the slop sink is out of use for an extended period, an optional time switch is available to start slop sink flushing automatically once a day.
The layout of this small combined care unit could not be any more compact. Not to mention all the usual TOPIC hygiene benefits (A0 value control system in line with DIN EN ISO 15883) as well as the space-space saving dimensions of 1,000 mm x 1,830/700 mm (from the floor). Ideal for reliable emptying, cleaning and disinfection of bedpans, urine bottles and potties. This makes your carers' work easier and improves the safety of staff and residents alike. Allowing staff members to focus on care instead of cleaning chores.
For more product information please contact your sales partner.
TOPIC small combined care units are designed with a clear focus on quality. They are simple to install, offer comprehensive features, and are easy to integrate in your existing utility room. At 1,000 mm x 1,730/700 mm, this combined unit is somewhat shorter than the TOPIC 10 but still a good, ergonomic working height. It also features an A0 value control system with short, adjustable programme cycles and the cleaning and disinfection process is vapour sealed.
This cleaning and disinfection appliance features an integrated, stainless steel slop sink, making it an ideal small combined care unit. It measures just 1.0 m in width, making it a space-saving installation which can easily slot in with the existing equipment in your utility room. The funnel-shaped slop sink unit for hygiene purposes comes with no flushing rim, i.e. with no slit for the water. Instead, a spiral water jet acts as the optimum self-cleaning feature for the slop sink funnel. If the slop sink is out of use for an extended period, an optional time switch is available to start slop sink flushing automatically once a day.
This compact model provides a work surface at a useful height for more ergonomic, more pleasant work. The integrated wash basin provides care staff with an easy option for hand hygiene.
Additional modules, like drying and storage racks for urine bottles and bedpans, will turn this functional unit into a professional cleaning station in a jiffy.
More information about this product
For more product information please contact your sales partner.
This washer-disinfector features an integrated stainless steel slop sink unit, making it the perfect small combined care unit. Plus, its floor clearance makes it easy to keep clean.
The funnel-shaped slop sink unit for hygiene purposes comes with no flushing rim, i.e. with no slit for the water. It comes with spiral flushing. This system uses two self-cleaning and easily replaced nozzles to generate water jets.
Further information about this product
For more product information please contact your sales partner.
Top-notch standards of hygiene and safety are absolutely essential in hospital wards and care homes. That’s why the new TopClean 60 multi-washer is designed to clean and disinfect just about anything you might find on a ward. From wash basins, trays and vases to operating theatre boots and even children’s toys, this all-round washer-disinfector offers a simple, fast and reliable means of getting things perfectly clean. With the option of choosing between thermal or chemo-thermal disinfection, you can also wash heat-sensitive materials such as operating theatre boots thoroughly and hygienically.
The innovative TopClean 60 multi-washer is the perfect way to meet hygiene requirements while simultaneously fulfilling work safety guidelines and leveraging maximum value from your investment. It can be used to clean and disinfect equipment and utensils fast and hygienically in a wide range of settings – from hospitals and nurseries to beauty salons.
This cabinet model is the perfect addition to any utility room set-up, be it pre-existing or completely new. Compact dimensions make for a good fit underneath the work surface – maximising the work surface space available.
When combined with additional items like shelves to be installed above the washer-disinfector, this version creates an excellent environment for hygienically safe care utensil cleaning and storage.
More information about this product
For more product information please contact your sales partner.
The TopLine 10 boasts compact dimensions (500 mm x 1,630 mm) and is mounted on the wall, giving you floor clearance – for even better hygiene in the area surrounding the appliance. This solution makes the area easier to clean and maintain with no tricky corners and nothing in the way. This space-saving cleaning and disinfection appliance is great for tricky spaces where fitting in medical technology can be a challenge. The TopLine 10 is delivered ready to connect. This is the perfect appliance for creating a safer environment for staff, patients and care home residents.
This cleaning and disinfection appliance features an integrated, stainless steel slop sink, making it an ideal small combined care unit. It measures just 1.0 m in width, making it a space-saving installation which can easily slot in with the existing equipment in your utility room. The funnel-shaped slop sink unit for hygiene purposes comes with no flushing rim, i.e. with no slit for the water. Instead, a spiral water jet acts as the optimum self-cleaning feature for the slop sink funnel. If the slop sink is out of use for an extended period, an optional time switch is available to start slop sink flushing automatically once a day.
The TOPIC 10 is quick and easy to install while taking up a minimal amount of space. Simply mount it on the wall, connect it up and it's ready for use! This cleaning and disinfection appliance is the perfect choice if you're planning to modernise or renovate your facility. It is wonderfully easy to use with our ‘one touch’ operating concept. Of course, we never compromise on hygiene safety so the TOPIC 10 features an A0 value control system in line with DIN EN ISO 15883. All of that makes life significantly easier for care staff while simultaneously enhancing both staff and patient safety.
The push-through hood facilitates consistent separation of the clean and dirty sides, opening up new options for workshop planning.
Using the TopClean H machine to professionally clean PPE is an especially ergonomically friendly way to work: the automatic hood system is gentle on the musculoskeletal system, while the heat recovery system reduces humidity, as well as lowering energy consumption. The result: better working conditions for SCBA technicians.
The patented compressed air connection in the wash chamber works alongside the regulator rack to prevent any moisture from entering the regulators. BA mask wearers can breathe easy on their next call-out.
The rack principle works using a base rack with various attachments and is suitable for all common manufacturers. All racks used in the TopClean M are also compatible with the TopClean H.
The high-quality touchscreen displays an intuitive menu, allowing operators to quickly and easily control this cleaning and disinfection machine. Images, logos, the selected cleaning programme, and current machine status can also be viewed here.
WLAN and Bluetooth interfaces provide speedy data exchange with other systems, simplifying the documentation and monitoring of operating costs.
The right hygiene concept in a compact format: the TOPIC cleaning and disinfection appliance as a floor-standing unit. Quick and easy to install, it also takes up a minimal amount of space. We know that just quick installation and ease of use with our ‘one touch’ operating concept won't cut it: hygiene safety cannot suffer. And it doesn't. The programme cycles on the TOPIC can be individually adjusted using the A0 value control system as per DIN EN ISO 15883.
Making life easier: simply pop in place the TopLine 20 cleaning and disinfection appliance and plug it in. That means you can make the best use of existing utility connections and keep your utility room up and running with virtually no disruption. The TopLine 20 cleaning and disinfection appliance is also amazingly practical due to the speed of installation, using a plinth for floor mounting. Convenient working height and carefully calculated dimensions (500 mm x 1,730 mm) make for outstanding ergonomic credentials and hygiene safety. That makes it safer and easier to use, boosting staff motivation and fulfilling health and safety requirements.
The TopLine 10 boasts compact dimensions (500 mm x 1,630 mm) and is mounted on the wall, giving you floor clearance – for even better hygiene in the area surrounding the appliance. This solution makes the area easier to clean and maintain with no tricky corners and nothing in the way. This space-saving cleaning and disinfection appliance is great for tricky spaces where fitting in medical technology can be a challenge. The TopLine 10 is delivered ready to connect. This is the perfect appliance for creating a safer environment for staff, patients and care home residents.
This washer-disinfector saves space and provides 20 cm floor clearance to make it convenient to keep machine surroundings clean and hygienic. The area can be cleaned easily, with no tricky corners.
Further information about this product
For more product information please contact your sales partner.
The installation frame is completely ready to connect and it disappears behind the tiled wall. The additional central connection connects to any industry-standard WC, meaning the washer-disinfector can be positioned immediately above the toilet – ideal for integrating into ensuite bathrooms and patient bedrooms.
When it comes to cleaning care utensils, patient-specific solutions are the best choice, especially in isolation wards, intensive care units, and anywhere else where you want to minimise the distance between the patient and the nearest washer-disinfector.
More information about this product
For more product information please contact your sales partner.
This model saves space. You see, the ready-to-connect installation frame disappears into the tiled wall making it even easier to keep the space around the appliance clean. This version is ideal for furnishing patient rooms.
This integrated version offers a key benefit for intensive care units and isolation wards: it eliminates the need to carry contaminated care utensils, such as bedpans and urine bottles, along the corridors, instead keeping each care utensil assigned to one particular patient.
For further product information, please contact your sales partner.
More information about this product
For more product information please contact your sales partner.
TOPIC small combined care units are designed with a clear focus on quality. They are simple to install, offer comprehensive features, and are easy to integrate in your existing utility room. At 1,000 mm x 1,730/700 mm, this combined unit is somewhat shorter than the TOPIC 10 but still a good, ergonomic working height. It also features an A0 value control system with short, adjustable programme cycles and the cleaning and disinfection process is vapour sealed.
For more product information please contact your sales partner.
The layout of this small combined care unit could not be any more compact. Not to mention all the usual TOPIC hygiene benefits (A0 value control system in line with DIN EN ISO 15883) as well as the space-space saving dimensions of 1,000 mm x 1,830/700 mm (from the floor). Ideal for reliable emptying, cleaning and disinfection of bedpans, urine bottles and potties. This makes your carers' work easier and improves the safety of staff and residents alike. Allowing staff members to focus on care instead of cleaning chores.
The TopLine 10 boasts compact dimensions (500 mm x 1,630 mm) and is mounted on the wall, giving you floor clearance – for even better hygiene in the area surrounding the appliance. This solution makes the area easier to clean and maintain with no tricky corners and nothing in the way. This space-saving cleaning and disinfection appliance is great for tricky spaces where fitting in medical technology can be a challenge. The TopLine 10 is delivered ready to connect. This is the perfect appliance for creating a safer environment for staff, patients and care home residents.
The layout of this small combined care unit could not be any more compact. Not to mention all the usual TOPIC hygiene benefits (A0 value control system in line with DIN EN ISO 15883) as well as the space-space saving dimensions of 1,000 mm x 1,830/700 mm (from the floor). Ideal for reliable emptying, cleaning and disinfection of bedpans, urine bottles and potties. This makes your carers' work easier and improves the safety of staff and residents alike. Allowing staff members to focus on care instead of cleaning chores.
This washer-disinfector with slop sink unit will meet all your needs when it comes to hygiene, ergonomics and even time. Especially at the installation stage. Simply position and plug in: the dirty utility room can remain fully operational.
The slop sink unit does not use a flushing rim and it is made from 100% stainless steel. It comes with spiral flushing. This system uses two self-cleaning and easily replaced nozzles to generate water jets.
More information about this product
For more product information please contact your sales partner.
The layout of this small combined care unit could not be any more compact. Not to mention all the usual TOPIC hygiene benefits (A0 value control system in line with DIN EN ISO 15883) as well as the space-space saving dimensions of 1,000 mm x 1,830/700 mm (from the floor). Ideal for reliable emptying, cleaning and disinfection of bedpans, urine bottles and potties. This makes your carers' work easier and improves the safety of staff and residents alike. Allowing staff members to focus on care instead of cleaning chores.
For more product information please contact your sales partner.
This cleaning and disinfection appliance features an integrated, stainless steel slop sink, making it an ideal small combined care unit. It measures just 1.0 m in width, making it a space-saving installation which can easily slot in with the existing equipment in your utility room. The funnel-shaped slop sink unit for hygiene purposes comes with no flushing rim, i.e. with no slit for the water. Instead, a spiral water jet acts as the optimum self-cleaning feature for the slop sink funnel. If the slop sink is out of use for an extended period, an optional time switch is available to start slop sink flushing automatically once a day.
Hygienic workflows in care homes, outstanding ergonomics, and an optimum use of space – that's what you get when you choose the TOPIC 40 small combined care unit. It consists of a cleaning and disinfection appliance, a table top and a hand wash basin. At just 900 mm in width, this petite package packs a powerful punch: a vapour-sealed cleaning and disinfection process, as well as short programme cycles tailored using the A0 value control system as per DIN EN ISO 15883, all of which contribute to improved hygiene in nursing homes.
This compact model provides a work surface at a useful height for more ergonomic, more pleasant work. The integrated wash basin provides care staff with an easy option for hand hygiene.
Additional modules, like drying and storage racks for urine bottles and bedpans, will turn this functional unit into a professional cleaning station in a jiffy.
Further information about this product
For more product information please contact your sales partner.
This washer-disinfector can be installed and ready to go in the wink of an eye: perfect if a quick setup is what you need. This version allows you to make the best use of existing utility connections and keep your utility room up and running with virtually no disruption.
More information about this product
For more product information please contact your sales partner.
This cabinet model is the perfect addition to any utility room set-up, be it pre-existing or completely new. Compact dimensions make for a good fit underneath the work surface – maximising the work surface space available.
When combined with additional items like shelves to be installed above the washer-disinfector, this version creates an excellent environment for hygienically safe care utensil cleaning and storage.
Further information about this product
For more product information please contact your sales partner.
This washer-disinfector features an integrated stainless steel slop sink unit, making it the perfect small combined care unit. Plus, its floor clearance makes it easy to keep clean.
The funnel-shaped slop sink unit for hygiene purposes comes with no flushing rim, i.e. with no slit for the water. It comes with spiral flushing. This system uses two self-cleaning and easily replaced nozzles to generate water jets.
More information about this product
For more product information please contact your sales partner.
The right hygiene concept in a compact format: the TOPIC cleaning and disinfection appliance as a floor-standing unit. Quick and easy to install, it also takes up a minimal amount of space. We know that just quick installation and ease of use with our ‘one touch’ operating concept won't cut it: hygiene safety cannot suffer. And it doesn't. The programme cycles on the TOPIC can be individually adjusted using the A0 value control system as per DIN EN ISO 15883.
For more product information please contact your sales partner.
The TOPIC 10 is quick and easy to install while taking up a minimal amount of space. Simply mount it on the wall, connect it up and it's ready for use! This cleaning and disinfection appliance is the perfect choice if you're planning to modernise or renovate your facility. It is wonderfully easy to use with our ‘one touch’ operating concept. Of course, we never compromise on hygiene safety so the TOPIC 10 features an A0 value control system in line with DIN EN ISO 15883. All of that makes life significantly easier for care staff while simultaneously enhancing both staff and patient safety.
The layout of this small combined care unit could not be any more compact. Not to mention all the usual TOPIC hygiene benefits (A0 value control system in line with DIN EN ISO 15883) as well as the space-space saving dimensions of 1,000 mm x 1,830/700 mm (from the floor). Ideal for reliable emptying, cleaning and disinfection of bedpans, urine bottles and potties. This makes your carers' work easier and improves the safety of staff and residents alike. Allowing staff members to focus on care instead of cleaning chores.
For more product information please contact your sales partner.
The TOPIC 10 is quick and easy to install while taking up a minimal amount of space. Simply mount it on the wall, connect it up and it's ready for use! This cleaning and disinfection appliance is the perfect choice if you're planning to modernise or renovate your facility. It is wonderfully easy to use with our ‘one touch’ operating concept. Of course, we never compromise on hygiene safety so the TOPIC 10 features an A0 value control system in line with DIN EN ISO 15883. All of that makes life significantly easier for care staff while simultaneously enhancing both staff and patient safety.
The installation frame is completely ready to connect and it disappears behind the tiled wall. The additional central connection connects to any industry-standard WC, meaning the washer-disinfector can be positioned immediately above the toilet – ideal for integrating into ensuite bathrooms and patient bedrooms.
When it comes to cleaning care utensils, patient-specific solutions are the best choice, especially in isolation wards, intensive care units, and anywhere else where you want to minimise the distance between the patient and the nearest washer-disinfector.
Further information about this product
For more product information please contact your sales partner.
The TOPIC 10 is quick and easy to install while taking up a minimal amount of space. Simply mount it on the wall, connect it up and it's ready for use! This cleaning and disinfection appliance is the perfect choice if you're planning to modernise or renovate your facility. It is wonderfully easy to use with our ‘one touch’ operating concept. Of course, we never compromise on hygiene safety so the TOPIC 10 features an A0 value control system in line with DIN EN ISO 15883. All of that makes life significantly easier for care staff while simultaneously enhancing both staff and patient safety.
The TopLine 10 boasts compact dimensions (500 mm x 1,630 mm) and is mounted on the wall, giving you floor clearance – for even better hygiene in the area surrounding the appliance. This solution makes the area easier to clean and maintain with no tricky corners and nothing in the way. This space-saving cleaning and disinfection appliance is great for tricky spaces where fitting in medical technology can be a challenge. The TopLine 10 is delivered ready to connect. This is the perfect appliance for creating a safer environment for staff, patients and care home residents.
The layout of this small combined care unit could not be any more compact. Not to mention all the usual TOPIC hygiene benefits (A0 value control system in line with DIN EN ISO 15883) as well as the space-space saving dimensions of 1,000 mm x 1,830/700 mm (from the floor). Ideal for reliable emptying, cleaning and disinfection of bedpans, urine bottles and potties. This makes your carers' work easier and improves the safety of staff and residents alike. Allowing staff members to focus on care instead of cleaning chores.
The TOPIC 40 is quick and easy to install and features both thermal and acoustic insulation. At just 900 mm x 900 mm, it is impressively compact and even creates additional work surface space with its table top. All that, and you can still expect everything from this cabinet model that you get from the floor-standing units in the TOPIC range: complete hygiene safety thanks to the A0 value control system as per DIN EN ISO 15883 and our ‘one touch’ operating concept with large membrane keys and clear icons.
The TOPIC 10 is quick and easy to install while taking up a minimal amount of space. Simply mount it on the wall, connect it up and it's ready for use! This cleaning and disinfection appliance is the perfect choice if you're planning to modernise or renovate your facility. It is wonderfully easy to use with our ‘one touch’ operating concept. Of course, we never compromise on hygiene safety so the TOPIC 10 features an A0 value control system in line with DIN EN ISO 15883. All of that makes life significantly easier for care staff while simultaneously enhancing both staff and patient safety.
TOPIC small combined care units are designed with a clear focus on quality. They are simple to install, offer comprehensive features, and are easy to integrate in your existing utility room. At 1,000 mm x 1,730/700 mm, this combined unit is somewhat shorter than the TOPIC 10 but still a good, ergonomic working height. It also features an A0 value control system with short, adjustable programme cycles and the cleaning and disinfection process is vapour sealed.
The TOPIC 10 is quick and easy to install while taking up a minimal amount of space. Simply mount it on the wall, connect it up and it's ready for use! This cleaning and disinfection appliance is the perfect choice if you're planning to modernise or renovate your facility. It is wonderfully easy to use with our ‘one touch’ operating concept. Of course, we never compromise on hygiene safety so the TOPIC 10 features an A0 value control system in line with DIN EN ISO 15883. All of that makes life significantly easier for care staff while simultaneously enhancing both staff and patient safety.
Hygienic workflows in care homes, outstanding ergonomics, and an optimum use of space – that's what you get when you choose the TOPIC 40 small combined care unit. It consists of a cleaning and disinfection appliance, a table top and a hand wash basin. At just 900 mm in width, this petite package packs a powerful punch: a vapour-sealed cleaning and disinfection process, as well as short programme cycles tailored using the A0 value control system as per DIN EN ISO 15883, all of which contribute to improved hygiene in nursing homes.
TOPIC small combined care units are designed with a clear focus on quality. They are simple to install, offer comprehensive features, and are easy to integrate in your existing utility room. At 1,000 mm x 1,730/700 mm, this combined unit is somewhat shorter than the TOPIC 10 but still a good, ergonomic working height. It also features an A0 value control system with short, adjustable programme cycles and the cleaning and disinfection process is vapour sealed.
For more product information please contact your sales partner.
Making life easier: simply pop in place the TopLine 20 cleaning and disinfection appliance and plug it in. That means you can make the best use of existing utility connections and keep your utility room up and running with virtually no disruption. The TopLine 20 cleaning and disinfection appliance is also amazingly practical due to the speed of installation, using a plinth for floor mounting. Convenient working height and carefully calculated dimensions (500 mm x 1,730 mm) make for outstanding ergonomic credentials and hygiene safety. That makes it safer and easier to use, boosting staff motivation and fulfilling health and safety requirements.
The layout of this small combined care unit could not be any more compact. Not to mention all the usual TOPIC hygiene benefits (A0 value control system in line with DIN EN ISO 15883) as well as the space-space saving dimensions of 1,000 mm x 1,830/700 mm (from the floor). Ideal for reliable emptying, cleaning and disinfection of bedpans, urine bottles and potties. This makes your carers' work easier and improves the safety of staff and residents alike. Allowing staff members to focus on care instead of cleaning chores.
For more product information please contact your sales partner.
This model saves space. You see, the ready-to-connect installation frame disappears into the tiled wall making it even easier to keep the space around the appliance clean. This version is ideal for furnishing patient rooms.
This integrated version offers a key benefit for intensive care units and isolation wards: it eliminates the need to carry contaminated care utensils, such as bedpans and urine bottles, along the corridors, instead keeping each care utensil assigned to one particular patient.
Further information about this product
For more product information please contact your sales partner.
This washer-disinfector with slop sink unit will meet all your needs when it comes to hygiene, ergonomics and even time. Especially at the installation stage. Simply position and plug in: the dirty utility room can remain fully operational.
The slop sink unit does not use a flushing rim and it is made from 100% stainless steel. It comes with spiral flushing. This system uses two self-cleaning and easily replaced nozzles to generate water jets.
Further information about this product
For more product information please contact your sales partner.
This washer-disinfector can be installed and ready to go in the wink of an eye: perfect if a quick setup is what you need. This version allows you to make the best use of existing utility connections and keep your utility room up and running with virtually no disruption.
Further information about this product
For more product information please contact your sales partner.
The right hygiene concept in a compact format: the TOPIC cleaning and disinfection appliance as a floor-standing unit. Quick and easy to install, it also takes up a minimal amount of space. We know that just quick installation and ease of use with our ‘one touch’ operating concept won't cut it: hygiene safety cannot suffer. And it doesn't. The programme cycles on the TOPIC can be individually adjusted using the A0 value control system as per DIN EN ISO 15883.
For more product information please contact your sales partner.
TOPIC small combined care units are designed with a clear focus on quality. They are simple to install, offer comprehensive features, and are easy to integrate in your existing utility room. At 1,000 mm x 1,730/700 mm, this combined unit is somewhat shorter than the TOPIC 10 but still a good, ergonomic working height. It also features an A0 value control system with short, adjustable programme cycles and the cleaning and disinfection process is vapour sealed.
For more product information please contact your sales partner.
The layout of this small combined care unit could not be any more compact. Not to mention all the usual TOPIC hygiene benefits (A0 value control system in line with DIN EN ISO 15883) as well as the space-space saving dimensions of 1,000 mm x 1,830/700 mm (from the floor). Ideal for reliable emptying, cleaning and disinfection of bedpans, urine bottles and potties. This makes your carers' work easier and improves the safety of staff and residents alike. Allowing staff members to focus on care instead of cleaning chores.
The TOPIC 10 is quick and easy to install while taking up a minimal amount of space. Simply mount it on the wall, connect it up and it's ready for use! This cleaning and disinfection appliance is the perfect choice if you're planning to modernise or renovate your facility. It is wonderfully easy to use with our ‘one touch’ operating concept. Of course, we never compromise on hygiene safety so the TOPIC 10 features an A0 value control system in line with DIN EN ISO 15883. All of that makes life significantly easier for care staff while simultaneously enhancing both staff and patient safety.
The TOPIC 40 is quick and easy to install and features both thermal and acoustic insulation. At just 900 mm x 900 mm, it is impressively compact and even creates additional work surface space with its table top. All that, and you can still expect everything from this cabinet model that you get from the floor-standing units in the TOPIC range: complete hygiene safety thanks to the A0 value control system as per DIN EN ISO 15883 and our ‘one touch’ operating concept with large membrane keys and clear icons.
TOPIC small combined care units are designed with a clear focus on quality. They are simple to install, offer comprehensive features, and are easy to integrate in your existing utility room. At 1,000 mm x 1,730/700 mm, this combined unit is somewhat shorter than the TOPIC 10 but still a good, ergonomic working height. It also features an A0 value control system with short, adjustable programme cycles and the cleaning and disinfection process is vapour sealed.
The right hygiene concept in a compact format: the TOPIC cleaning and disinfection appliance as a floor-standing unit. Quick and easy to install, it also takes up a minimal amount of space. We know that just quick installation and ease of use with our ‘one touch’ operating concept won't cut it: hygiene safety cannot suffer. And it doesn't. The programme cycles on the TOPIC can be individually adjusted using the A0 value control system as per DIN EN ISO 15883.
For more product information please contact your sales partner.
The layout of this small combined care unit could not be any more compact. Not to mention all the usual TOPIC hygiene benefits (A0 value control system in line with DIN EN ISO 15883) as well as the space-space saving dimensions of 1,000 mm x 1,830/700 mm (from the floor). Ideal for reliable emptying, cleaning and disinfection of bedpans, urine bottles and potties. This makes your carers' work easier and improves the safety of staff and residents alike. Allowing staff members to focus on care instead of cleaning chores.
The TOPIC 10 is quick and easy to install while taking up a minimal amount of space. Simply mount it on the wall, connect it up and it's ready for use! This cleaning and disinfection appliance is the perfect choice if you're planning to modernise or renovate your facility. It is wonderfully easy to use with our ‘one touch’ operating concept. Of course, we never compromise on hygiene safety so the TOPIC 10 features an A0 value control system in line with DIN EN ISO 15883. All of that makes life significantly easier for care staff while simultaneously enhancing both staff and patient safety.
The right hygiene concept in a compact format: the TOPIC cleaning and disinfection appliance as a floor-standing unit. Quick and easy to install, it also takes up a minimal amount of space. We know that just quick installation and ease of use with our ‘one touch’ operating concept won't cut it: hygiene safety cannot suffer. And it doesn't. The programme cycles on the TOPIC can be individually adjusted using the A0 value control system as per DIN EN ISO 15883.
For more product information please contact your sales partner.
The TOPIC 10 is quick and easy to install while taking up a minimal amount of space. Simply mount it on the wall, connect it up and it's ready for use! This cleaning and disinfection appliance is the perfect choice if you're planning to modernise or renovate your facility. It is wonderfully easy to use with our ‘one touch’ operating concept. Of course, we never compromise on hygiene safety so the TOPIC 10 features an A0 value control system in line with DIN EN ISO 15883. All of that makes life significantly easier for care staff while simultaneously enhancing both staff and patient safety.
Hygienic workflows in care homes, outstanding ergonomics, and an optimum use of space – that's what you get when you choose the TOPIC 40 small combined care unit. It consists of a cleaning and disinfection appliance, a table top and a hand wash basin. At just 900 mm in width, this petite package packs a powerful punch: a vapour-sealed cleaning and disinfection process, as well as short programme cycles tailored using the A0 value control system as per DIN EN ISO 15883, all of which contribute to improved hygiene in nursing homes.
TOPIC small combined care units are designed with a clear focus on quality. They are simple to install, offer comprehensive features, and are easy to integrate in your existing utility room. At 1,000 mm x 1,730/700 mm, this combined unit is somewhat shorter than the TOPIC 10 but still a good, ergonomic working height. It also features an A0 value control system with short, adjustable programme cycles and the cleaning and disinfection process is vapour sealed.
TOPIC small combined care units are designed with a clear focus on quality. They are simple to install, offer comprehensive features, and are easy to integrate in your existing utility room. At 1,000 mm x 1,730/700 mm, this combined unit is somewhat shorter than the TOPIC 10 but still a good, ergonomic working height. It also features an A0 value control system with short, adjustable programme cycles and the cleaning and disinfection process is vapour sealed.
For more product information please contact your sales partner.
TOPIC small combined care units are designed with a clear focus on quality. They are simple to install, offer comprehensive features, and are easy to integrate in your existing utility room. At 1,000 mm x 1,730/700 mm, this combined unit is somewhat shorter than the TOPIC 10 but still a good, ergonomic working height. It also features an A0 value control system with short, adjustable programme cycles and the cleaning and disinfection process is vapour sealed.
Hygienic workflows in care homes, outstanding ergonomics, and an optimum use of space – that's what you get when you choose the TOPIC 40 small combined care unit. It consists of a cleaning and disinfection appliance, a table top and a hand wash basin. At just 900 mm in width, this petite package packs a powerful punch: a vapour-sealed cleaning and disinfection process, as well as short programme cycles tailored using the A0 value control system as per DIN EN ISO 15883, all of which contribute to improved hygiene in nursing homes.
The right hygiene concept in a compact format: the TOPIC cleaning and disinfection appliance as a floor-standing unit. Quick and easy to install, it also takes up a minimal amount of space. We know that just quick installation and ease of use with our ‘one touch’ operating concept won't cut it: hygiene safety cannot suffer. And it doesn't. The programme cycles on the TOPIC can be individually adjusted using the A0 value control system as per DIN EN ISO 15883.
The right hygiene concept in a compact format: the TOPIC cleaning and disinfection appliance as a floor-standing unit. Quick and easy to install, it also takes up a minimal amount of space. We know that just quick installation and ease of use with our ‘one touch’ operating concept won't cut it: hygiene safety cannot suffer. And it doesn't. The programme cycles on the TOPIC can be individually adjusted using the A0 value control system as per DIN EN ISO 15883.
The right hygiene concept in a compact format: the TOPIC cleaning and disinfection appliance as a floor-standing unit. Quick and easy to install, it also takes up a minimal amount of space. We know that just quick installation and ease of use with our ‘one touch’ operating concept won't cut it: hygiene safety cannot suffer. And it doesn't. The programme cycles on the TOPIC can be individually adjusted using the A0 value control system as per DIN EN ISO 15883.
The TOPIC 40 is quick and easy to install and features both thermal and acoustic insulation. At just 900 mm x 900 mm, it is impressively compact and even creates additional work surface space with its table top. All that, and you can still expect everything from this cabinet model that you get from the floor-standing units in the TOPIC range: complete hygiene safety thanks to the A0 value control system as per DIN EN ISO 15883 and our ‘one touch’ operating concept with large membrane keys and clear icons.
Hygienic workflows in care homes, outstanding ergonomics, and an optimum use of space – that's what you get when you choose the TOPIC 40 small combined care unit. It consists of a cleaning and disinfection appliance, a table top and a hand wash basin. At just 900 mm in width, this petite package packs a powerful punch: a vapour-sealed cleaning and disinfection process, as well as short programme cycles tailored using the A0 value control system as per DIN EN ISO 15883, all of which contribute to improved hygiene in nursing homes.
The right hygiene concept in a compact format: the TOPIC cleaning and disinfection appliance as a floor-standing unit. Quick and easy to install, it also takes up a minimal amount of space. We know that just quick installation and ease of use with our ‘one touch’ operating concept won't cut it: hygiene safety cannot suffer. And it doesn't. The programme cycles on the TOPIC can be individually adjusted using the A0 value control system as per DIN EN ISO 15883.
For more product information please contact your sales partner.
Making life easier: simply pop in place the TopLine 20 cleaning and disinfection appliance and plug it in. That means you can make the best use of existing utility connections and keep your utility room up and running with virtually no disruption. The TopLine 20 cleaning and disinfection appliance is also amazingly practical due to the speed of installation, using a plinth for floor mounting. Convenient working height and carefully calculated dimensions (500 mm x 1,730 mm) make for outstanding ergonomic credentials and hygiene safety. That makes it safer and easier to use, boosting staff motivation and fulfilling health and safety requirements.
Hygienic workflows in care homes, outstanding ergonomics, and an optimum use of space – that's what you get when you choose the TOPIC 40 small combined care unit. It consists of a cleaning and disinfection appliance, a table top and a hand wash basin. At just 900 mm in width, this petite package packs a powerful punch: a vapour-sealed cleaning and disinfection process, as well as short programme cycles tailored using the A0 value control system as per DIN EN ISO 15883, all of which contribute to improved hygiene in nursing homes.
The TOPIC 40 is quick and easy to install and features both thermal and acoustic insulation. At just 900 mm x 900 mm, it is impressively compact and even creates additional work surface space with its table top. All that, and you can still expect everything from this cabinet model that you get from the floor-standing units in the TOPIC range: complete hygiene safety thanks to the A0 value control system as per DIN EN ISO 15883 and our ‘one touch’ operating concept with large membrane keys and clear icons.
The right hygiene concept in a compact format: the TOPIC cleaning and disinfection appliance as a floor-standing unit. Quick and easy to install, it also takes up a minimal amount of space. We know that just quick installation and ease of use with our ‘one touch’ operating concept won't cut it: hygiene safety cannot suffer. And it doesn't. The programme cycles on the TOPIC can be individually adjusted using the A0 value control system as per DIN EN ISO 15883.
The TOPIC 40 is quick and easy to install and features both thermal and acoustic insulation. At just 900 mm x 900 mm, it is impressively compact and even creates additional work surface space with its table top. All that, and you can still expect everything from this cabinet model that you get from the floor-standing units in the TOPIC range: complete hygiene safety thanks to the A0 value control system as per DIN EN ISO 15883 and our ‘one touch’ operating concept with large membrane keys and clear icons.
The TOPIC 40 is quick and easy to install and features both thermal and acoustic insulation. At just 900 mm x 900 mm, it is impressively compact and even creates additional work surface space with its table top. All that, and you can still expect everything from this cabinet model that you get from the floor-standing units in the TOPIC range: complete hygiene safety thanks to the A0 value control system as per DIN EN ISO 15883 and our ‘one touch’ operating concept with large membrane keys and clear icons.
This washer-disinfector saves space and provides 20 cm floor clearance to make it convenient to keep machine surroundings clean and hygienic. The area can be cleaned easily, with no tricky corners.
More information about this product
For more product information please contact your sales partner.
Hygienic workflows in care homes, outstanding ergonomics, and an optimum use of space – that's what you get when you choose the TOPIC 40 small combined care unit. It consists of a cleaning and disinfection appliance, a table top and a hand wash basin. At just 900 mm in width, this petite package packs a powerful punch: a vapour-sealed cleaning and disinfection process, as well as short programme cycles tailored using the A0 value control system as per DIN EN ISO 15883, all of which contribute to improved hygiene in nursing homes.
The TOPIC 10 is quick and easy to install while taking up a minimal amount of space. Simply mount it on the wall, connect it up and it's ready for use! This cleaning and disinfection appliance is the perfect choice if you're planning to modernise or renovate your facility. It is wonderfully easy to use with our ‘one touch’ operating concept. Of course, we never compromise on hygiene safety so the TOPIC 10 features an A0 value control system in line with DIN EN ISO 15883. All of that makes life significantly easier for care staff while simultaneously enhancing both staff and patient safety.
Hygienic workflows in care homes, outstanding ergonomics, and an optimum use of space – that's what you get when you choose the TOPIC 40 small combined care unit. It consists of a cleaning and disinfection appliance, a table top and a hand wash basin. At just 900 mm in width, this petite package packs a powerful punch: a vapour-sealed cleaning and disinfection process, as well as short programme cycles tailored using the A0 value control system as per DIN EN ISO 15883, all of which contribute to improved hygiene in nursing homes.
TOPIC small combined care units are designed with a clear focus on quality. They are simple to install, offer comprehensive features, and are easy to integrate in your existing utility room. At 1,000 mm x 1,730/700 mm, this combined unit is somewhat shorter than the TOPIC 10 but still a good, ergonomic working height. It also features an A0 value control system with short, adjustable programme cycles and the cleaning and disinfection process is vapour sealed.
The layout of this small combined care unit could not be any more compact. Not to mention all the usual TOPIC hygiene benefits (A0 value control system in line with DIN EN ISO 15883) as well as the space-space saving dimensions of 1,000 mm x 1,830/700 mm (from the floor). Ideal for reliable emptying, cleaning and disinfection of bedpans, urine bottles and potties. This makes your carers' work easier and improves the safety of staff and residents alike. Allowing staff members to focus on care instead of cleaning chores.
This cleaning and disinfection appliance features an integrated, stainless steel slop sink, making it an ideal small combined care unit. It measures just 1.0 m in width, making it a space-saving installation which can easily slot in with the existing equipment in your utility room. The funnel-shaped slop sink unit for hygiene purposes comes with no flushing rim, i.e. with no slit for the water. Instead, a spiral water jet acts as the optimum self-cleaning feature for the slop sink funnel. If the slop sink is out of use for an extended period, an optional time switch is available to start slop sink flushing automatically once a day.
The TOPIC 40 is quick and easy to install and features both thermal and acoustic insulation. At just 900 mm x 900 mm, it is impressively compact and even creates additional work surface space with its table top. All that, and you can still expect everything from this cabinet model that you get from the floor-standing units in the TOPIC range: complete hygiene safety thanks to the A0 value control system as per DIN EN ISO 15883 and our ‘one touch’ operating concept with large membrane keys and clear icons.
Hygienic workflows in care homes, outstanding ergonomics, and an optimum use of space – that's what you get when you choose the TOPIC 40 small combined care unit. It consists of a cleaning and disinfection appliance, a table top and a hand wash basin. At just 900 mm in width, this petite package packs a powerful punch: a vapour-sealed cleaning and disinfection process, as well as short programme cycles tailored using the A0 value control system as per DIN EN ISO 15883, all of which contribute to improved hygiene in nursing homes.
The TOPIC 40 is quick and easy to install and features both thermal and acoustic insulation. At just 900 mm x 900 mm, it is impressively compact and even creates additional work surface space with its table top. All that, and you can still expect everything from this cabinet model that you get from the floor-standing units in the TOPIC range: complete hygiene safety thanks to the A0 value control system as per DIN EN ISO 15883 and our ‘one touch’ operating concept with large membrane keys and clear icons.
The right hygiene concept in a compact format: the TOPIC cleaning and disinfection appliance as a floor-standing unit. Quick and easy to install, it also takes up a minimal amount of space. We know that just quick installation and ease of use with our ‘one touch’ operating concept won't cut it: hygiene safety cannot suffer. And it doesn't. The programme cycles on the TOPIC can be individually adjusted using the A0 value control system as per DIN EN ISO 15883.
The TopLine 10 boasts compact dimensions (500 mm x 1,630 mm) and is mounted on the wall, giving you floor clearance – for even better hygiene in the area surrounding the appliance. This solution makes the area easier to clean and maintain with no tricky corners and nothing in the way. This space-saving cleaning and disinfection appliance is great for tricky spaces where fitting in medical technology can be a challenge. The TopLine 10 is delivered ready to connect. This is the perfect appliance for creating a safer environment for staff, patients and care home residents.
TOPIC small combined care units are designed with a clear focus on quality. They are simple to install, offer comprehensive features, and are easy to integrate in your existing utility room. At 1,000 mm x 1,730/700 mm, this combined unit is somewhat shorter than the TOPIC 10 but still a good, ergonomic working height. It also features an A0 value control system with short, adjustable programme cycles and the cleaning and disinfection process is vapour sealed.
The TOPIC 40 is quick and easy to install and features both thermal and acoustic insulation. At just 900 mm x 900 mm, it is impressively compact and even creates additional work surface space with its table top. All that, and you can still expect everything from this cabinet model that you get from the floor-standing units in the TOPIC range: complete hygiene safety thanks to the A0 value control system as per DIN EN ISO 15883 and our ‘one touch’ operating concept with large membrane keys and clear icons.
The TOPIC 40 is quick and easy to install and features both thermal and acoustic insulation. At just 900 mm x 900 mm, it is impressively compact and even creates additional work surface space with its table top. All that, and you can still expect everything from this cabinet model that you get from the floor-standing units in the TOPIC range: complete hygiene safety thanks to the A0 value control system as per DIN EN ISO 15883 and our ‘one touch’ operating concept with large membrane keys and clear icons.
The layout of this small combined care unit could not be any more compact. Not to mention all the usual TOPIC hygiene benefits (A0 value control system in line with DIN EN ISO 15883) as well as the space-space saving dimensions of 1,000 mm x 1,830/700 mm (from the floor). Ideal for reliable emptying, cleaning and disinfection of bedpans, urine bottles and potties. This makes your carers' work easier and improves the safety of staff and residents alike. Allowing staff members to focus on care instead of cleaning chores.
For more product information please contact your sales partner.
The TOPIC 40 is quick and easy to install and features both thermal and acoustic insulation. At just 900 mm x 900 mm, it is impressively compact and even creates additional work surface space with its table top. All that, and you can still expect everything from this cabinet model that you get from the floor-standing units in the TOPIC range: complete hygiene safety thanks to the A0 value control system as per DIN EN ISO 15883 and our ‘one touch’ operating concept with large membrane keys and clear icons.
Hygienic workflows in care homes, outstanding ergonomics, and an optimum use of space – that's what you get when you choose the TOPIC 40 small combined care unit. It consists of a cleaning and disinfection appliance, a table top and a hand wash basin. At just 900 mm in width, this petite package packs a powerful punch: a vapour-sealed cleaning and disinfection process, as well as short programme cycles tailored using the A0 value control system as per DIN EN ISO 15883, all of which contribute to improved hygiene in nursing homes.
Hygienic workflows in care homes, outstanding ergonomics, and an optimum use of space – that's what you get when you choose the TOPIC 40 small combined care unit. It consists of a cleaning and disinfection appliance, a table top and a hand wash basin. At just 900 mm in width, this petite package packs a powerful punch: a vapour-sealed cleaning and disinfection process, as well as short programme cycles tailored using the A0 value control system as per DIN EN ISO 15883, all of which contribute to improved hygiene in nursing homes.
The TOPIC 10 is quick and easy to install while taking up a minimal amount of space. Simply mount it on the wall, connect it up and it's ready for use! This cleaning and disinfection appliance is the perfect choice if you're planning to modernise or renovate your facility. It is wonderfully easy to use with our ‘one touch’ operating concept. Of course, we never compromise on hygiene safety so the TOPIC 10 features an A0 value control system in line with DIN EN ISO 15883. All of that makes life significantly easier for care staff while simultaneously enhancing both staff and patient safety.
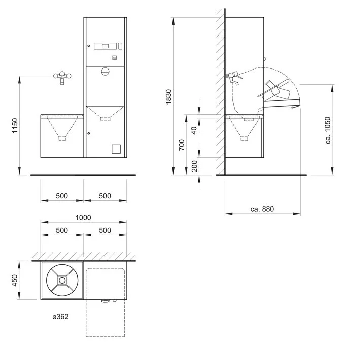
Cabinet model with hand wash basin for additional work surface space.
This compact model provides a work surface at a useful height for more ergonomic, more pleasant work. The integrated wash basin provides care staff with an easy option for hand hygiene.
Additional modules, like drying and storage racks for urine bottles and bedpans, will turn this functional unit into a professional cleaning station in a jiffy.
For further product information, please contact your sales partner.
This cleaning and disinfection appliance features an integrated, stainless steel slop sink, making it an ideal small combined care unit. It measures just 1.0 m in width, making it a space-saving installation which can easily slot in with the existing equipment in your utility room. The funnel-shaped slop sink unit for hygiene purposes comes with no flushing rim, i.e. with no slit for the water. Instead, a spiral water jet acts as the optimum self-cleaning feature for the slop sink funnel. If the slop sink is out of use for an extended period, an optional time switch is available to start slop sink flushing automatically once a day.
Cabinet model for additional work surface space.
This cabinet model is the perfect addition to any utility room set-up, be it pre-existing or completely new. Compact dimensions make for a good fit underneath the worktop – maximising the work surface space available.
When combined with additional items like shelves to be installed above the washer-disinfector, this version creates an excellent environment for hygienically safe care utensil cleaning and storage.
For further product information, please contact your sales partner.
TOPIC small combined care units are designed with a clear focus on quality. They are simple to install, offer comprehensive features, and are easy to integrate in your existing utility room. At 1,000 mm x 1,730/700 mm, this combined unit is somewhat shorter than the TOPIC 10 but still a good, ergonomic working height. It also features an A0 value control system with short, adjustable programme cycles and the cleaning and disinfection process is vapour sealed.
For more product information please contact your sales partner.
The TopLine 10 boasts compact dimensions (500 mm x 1,630 mm) and is mounted on the wall, giving you floor clearance – for even better hygiene in the area surrounding the appliance. This solution makes the area easier to clean and maintain with no tricky corners and nothing in the way. This space-saving cleaning and disinfection appliance is great for tricky spaces where fitting in medical technology can be a challenge. The TopLine 10 is delivered ready to connect. This is the perfect appliance for creating a safer environment for staff, patients and care home residents.
The cleaning and disinfection appliance is combined with a hand wash basin to provide even more opportunities for good hygiene in the utility room. So if you're looking to promote compliance with hand hygiene in hospital settings, this is the perfect choice of all-in-one unit. This user-friendly system can easily be combined with additional modules, such as shelving for storing bedpans and the like, to create a truly professional cleaning station. Air drying and recooling using filtered air (with a HEPA filter) contribute to especially hygienic cleaning results.
Individual appliance with central WC connection for flush-to-the-wall installation.
The installation frame is completely ready to connect and it disappears behind the tiled wall. The additional central connection connects to any industry-standard WC, meaning the washer-disinfector can be positioned immediately above the toilet – ideal for integrating into ensuite bathrooms attached to patient bedrooms.
When it comes to treating care utensils, patient-specific solutions are the best choice, especially in isolation wards, intensive care units, and anywhere else where you want to minimise the distance between the patient and the nearest washer-disinfector.
For further product information, please contact your sales partner.
The layout of this small combined care unit could not be any more compact. Not to mention all the usual TOPIC hygiene benefits (A0 value control system in line with DIN EN ISO 15883) as well as the space-space saving dimensions of 1,000 mm x 1,830/700 mm (from the floor). Ideal for reliable emptying, cleaning and disinfection of bedpans, urine bottles and potties. This makes your carers' work easier and improves the safety of staff and residents alike. Allowing staff members to focus on care instead of cleaning chores.
For more product information please contact your sales partner.
This cabinet model is the perfect addition to your existing utility room set-up. Combined with additional modules – such as the bedpan and urine bottle racks which fit perfectly above the TopLine 40 – this cleaning and disinfection appliance offers a professional and hygienic cleaning station for your utility room. The patented vapour-sealed system means that no pathogens can escape so, on this point, workplace and hygiene safety are assured. Recooling and drying systems have care utensils ready for use again in a jiffy.
The right hygiene concept in a compact format: the TOPIC cleaning and disinfection appliance as a floor-standing unit. Quick and easy to install, it also takes up a minimal amount of space. We know that just quick installation and ease of use with our ‘one touch’ operating concept won't cut it: hygiene safety cannot suffer. And it doesn't. The programme cycles on the TOPIC can be individually adjusted using the A0 value control system as per DIN EN ISO 15883.
For more product information please contact your sales partner.
Top-notch standards of hygiene and safety are absolutely essential in hospital wards and care homes. That’s why the new TopClean 60 multi-washer is designed to clean and disinfect just about anything you might find on a ward. From wash basins, trays and vases to operating theatre boots and even children’s toys, this all-round washer-disinfector offers a simple, fast and reliable means of getting things perfectly clean. With the option of choosing between thermal or chemo-thermal disinfection, you can also wash heat-sensitive materials such as operating theatre boots thoroughly and hygienically.
The innovative TopClean 60 multi-washer is the perfect way to meet hygiene requirements while simultaneously fulfilling work safety guidelines and leveraging maximum value from your investment. It can be used to clean and disinfect equipment and utensils fast and hygienically in a wide range of settings – from hospitals and nurseries to beauty salons.
The TOPIC 10 is quick and easy to install while taking up a minimal amount of space. Simply mount it on the wall, connect it up and it's ready for use! This cleaning and disinfection appliance is the perfect choice if you're planning to modernise or renovate your facility. It is wonderfully easy to use with our ‘one touch’ operating concept. Of course, we never compromise on hygiene safety so the TOPIC 10 features an A0 value control system in line with DIN EN ISO 15883. All of that makes life significantly easier for care staff while simultaneously enhancing both staff and patient safety.
The cleaning and disinfection appliance is combined with a hand wash basin to provide even more opportunities for good hygiene in the utility room. So if you're looking to promote compliance with hand hygiene in hospital settings, this is the perfect choice of all-in-one unit. This user-friendly system can easily be combined with additional modules, such as shelving for storing bedpans and the like, to create a truly professional cleaning station. Air drying and recooling using filtered air (with a HEPA filter) contribute to especially hygienic cleaning results.
When it comes to cleaning care utensils, patient-specific solutions are the best choice, especially in isolation wards, intensive care units, and anywhere else where you want to minimise the distance between the patient and the nearest cleaning and disinfection appliance. This appliance features a ready-to-connect installation frame and has been carefully designed to fit above the patient's toilet. Just like all cleaning and disinfection appliances in the TopLine range, the A0 value on the TopLine 30 WC can be variably adjusted (in line with DIN EN ISO 15883).
Individual appliance for flush-to-the-wall installation.
This model saves space. You see, the ready-to-connect installation frame disappears into the tiled wall making it even easier to keep the space around the appliance clean. This version is ideal for furnishing patient rooms.
This integrated version offers a key benefit for intensive care units and isolation wards: it eliminates the need to carry contaminated care utensils, such as bedpans and urine bottles, along the corridors, instead keeping each care utensil assigned to one particular patient.
For further product information, please contact your sales partner.
The cleaning and disinfection appliance is combined with a hand wash basin to provide even more opportunities for good hygiene in the utility room. So if you're looking to promote compliance with hand hygiene in hospital settings, this is the perfect choice of all-in-one unit. This user-friendly system can easily be combined with additional modules, such as shelving for storing bedpans and the like, to create a truly professional cleaning station. Air drying and recooling using filtered air (with a HEPA filter) contribute to especially hygienic cleaning results.
TOPIC small combined care units are designed with a clear focus on quality. They are simple to install, offer comprehensive features, and are easy to integrate in your existing utility room. At 1,000 mm x 1,730/700 mm, this combined unit is somewhat shorter than the TOPIC 10 but still a good, ergonomic working height. It also features an A0 value control system with short, adjustable programme cycles and the cleaning and disinfection process is vapour sealed.
For more product information please contact your sales partner.
This cabinet model is the perfect addition to your existing utility room set-up. Combined with additional modules – such as the bedpan and urine bottle racks which fit perfectly above the TopLine 40 – this cleaning and disinfection appliance offers a professional and hygienic cleaning station for your utility room. The patented vapour-sealed system means that no pathogens can escape so, on this point, workplace and hygiene safety are assured. Recooling and drying systems have care utensils ready for use again in a jiffy.
The cleaning and disinfection appliance is combined with a hand wash basin to provide even more opportunities for good hygiene in the utility room. So if you're looking to promote compliance with hand hygiene in hospital settings, this is the perfect choice of all-in-one unit. This user-friendly system can easily be combined with additional modules, such as shelving for storing bedpans and the like, to create a truly professional cleaning station. Air drying and recooling using filtered air (with a HEPA filter) contribute to especially hygienic cleaning results.
Hygienic workflows in care homes, outstanding ergonomics, and an optimum use of space – that's what you get when you choose the TOPIC 40 small combined care unit. It consists of a cleaning and disinfection appliance, a table top and a hand wash basin. At just 900 mm in width, this petite package packs a powerful punch: a vapour-sealed cleaning and disinfection process, as well as short programme cycles tailored using the A0 value control system as per DIN EN ISO 15883, all of which contribute to improved hygiene in nursing homes.
The TopLine 30 wall-mounted cleaning and disinfection appliance features a ready-to-connect installation unit behind the tiled wall. That makes it a genuinely space-saving option for cleaning and disinfecting care utensils – plus it makes it even simpler to maintain top-notch hygiene standards in the area around the appliance. All of that makes life significantly easier for care staff while simultaneously enhancing both staff and patient safety. This cleaning and disinfection appliance offers especially significant benefits for intensive care units and isolation wards, eliminating the need to carry contaminated care utensils, such as bedpans and urine bottles, along the corridors and keeping each care utensil assigned to one particular patient.
Top-notch standards of hygiene and safety are absolutely essential in hospital wards and care homes. That’s why the new TopClean 60 multi-washer is designed to clean and disinfect just about anything you might find on a ward. From wash basins, trays and vases to operating theatre boots and even children’s toys, this all-round washer-disinfector offers a simple, fast and reliable means of getting things perfectly clean. With the option of choosing between thermal or chemo-thermal disinfection, you can also wash heat-sensitive materials such as operating theatre boots thoroughly and hygienically.
The innovative TopClean 60 multi-washer is the perfect way to meet hygiene requirements while simultaneously fulfilling work safety guidelines and leveraging maximum value from your investment. It can be used to clean and disinfect equipment and utensils fast and hygienically in a wide range of settings – from hospitals and nurseries to beauty salons.
This cabinet model is the perfect addition to your existing utility room set-up. Combined with additional modules – such as the bedpan and urine bottle racks which fit perfectly above the TopLine 40 – this cleaning and disinfection appliance offers a professional and hygienic cleaning station for your utility room. The patented vapour-sealed system means that no pathogens can escape so, on this point, workplace and hygiene safety are assured. Recooling and drying systems have care utensils ready for use again in a jiffy.
Floor-standing unit with slop sink unit and plinth for floor mounting.
This washer-disinfector with slop sink unit will meet all your needs when it comes to hygiene, ergonomics and even time. Especially at the installation stage. Simply position and plug in: the utility room can remain fully operational.
The slop sink unit does not have a flushing rim and it is made from 100% stainless steel. It comes with spiral flushing. This system uses two self-cleaning and easily replaced nozzles to generate water jets.
For further product information, please contact your sales partner.
The right hygiene concept in a compact format: the TOPIC cleaning and disinfection appliance as a floor-standing unit. Quick and easy to install, it also takes up a minimal amount of space. We know that just quick installation and ease of use with our ‘one touch’ operating concept won't cut it: hygiene safety cannot suffer. And it doesn't. The programme cycles on the TOPIC can be individually adjusted using the A0 value control system as per DIN EN ISO 15883.
For more product information please contact your sales partner.
The TopLine 20 with slop sink unit is an all-in-one floor-standing unit providing everything users could want in terms of hygiene, ergonomics and technology. The A0 value (according to DIN EN ISO 15883) can be adjusted according to your needs. The appliance is also completely vapour sealed and features drying and recooling systems which use filtered air, as well as a self-disinfecting water circulation system. The slop sink unit is, of course, 100% stainless steel with no flushing rim. Two nozzles provide a spiral jet of water for optimum self cleaning.
This cabinet model is the perfect addition to your existing utility room set-up. Combined with additional modules – such as the bedpan and urine bottle racks which fit perfectly above the TopLine 40 – this cleaning and disinfection appliance offers a professional and hygienic cleaning station for your utility room. The patented vapour-sealed system means that no pathogens can escape so, on this point, workplace and hygiene safety are assured. Recooling and drying systems have care utensils ready for use again in a jiffy.
When it comes to cleaning care utensils, patient-specific solutions are the best choice, especially in isolation wards, intensive care units, and anywhere else where you want to minimise the distance between the patient and the nearest cleaning and disinfection appliance. This appliance features a ready-to-connect installation frame and has been carefully designed to fit above the patient's toilet. Just like all cleaning and disinfection appliances in the TopLine range, the A0 value on the TopLine 30 WC can be variably adjusted (in line with DIN EN ISO 15883).
And this is the only respirator washer of its size that can clean and disinfect regulators even while they are still pressurised.
TopClean M sets new standards in efficiency, speed and flexibility, cleaning and disinfecting up to 40 masks or 80 regulators an hour in an innovative chemo-thermal disinfection process.
Designed to be ergonomic and easy to use, the respirator washer also offers reliable and reproducible hygienic cleaning results which fully adhere to both safety guidelines and mask manufacturers' instructions – just some of the many benefits offered by TopClean M.
TopClean M can simplify your workflow and increase the productivity of your equipment workshop so that the equipment your team needs for their next call-out will be ready for action in no time. It's never been easier to ensure you stick to the Personal Protective Equipment (PPE) guidelines.
Developed and tested in collaboration with specialists from the fire service
The idea behind the TopClean M respirator washer evolved directly from real-life fire service operations. That's why TopClean M is so perfectly suited to the special requirements of respiratory protection equipment cleaning and disinfection – and why it is such a great choice for any respiratory equipment workshop.
The cleaning and disinfection appliance is combined with a hand wash basin to provide even more opportunities for good hygiene in the utility room. So if you're looking to promote compliance with hand hygiene in hospital settings, this is the perfect choice of all-in-one unit. This user-friendly system can easily be combined with additional modules, such as shelving for storing bedpans and the like, to create a truly professional cleaning station. Air drying and recooling using filtered air (with a HEPA filter) contribute to especially hygienic cleaning results.
The TOPIC 40 is quick and easy to install and features both thermal and acoustic insulation. At just 900 mm x 900 mm, it is impressively compact and even creates additional work surface space with its table top. All that, and you can still expect everything from this cabinet model that you get from the floor-standing units in the TOPIC range: complete hygiene safety thanks to the A0 value control system as per DIN EN ISO 15883 and our ‘one touch’ operating concept with large membrane keys and clear icons.
When it comes to cleaning care utensils, patient-specific solutions are the best choice, especially in isolation wards, intensive care units, and anywhere else where you want to minimise the distance between the patient and the nearest cleaning and disinfection appliance. This appliance features a ready-to-connect installation frame and has been carefully designed to fit above the patient's toilet. Just like with all cleaning and disinfection appliances in the TopLine range, the A0 value on the TopLine 30 WC can be variably adjusted (in line with DIN EN ISO 15883).
Hygienic workflows in care homes, outstanding ergonomics, and an optimum use of space – that's what you get when you choose the TOPIC 40 small combined care unit. It consists of a cleaning and disinfection appliance, a table top and a hand wash basin. At just 900 mm in width, this petite package packs a powerful punch: a vapour-sealed cleaning and disinfection process, as well as short programme cycles tailored using the A0 value control system as per DIN EN ISO 15883, all of which contribute to improved hygiene in nursing homes.
The TopLine 30 wall-mounted cleaning and disinfection appliance features a ready-to-connect installation unit behind the tiled wall. That makes it a genuinely space-saving option for cleaning and disinfecting care utensils – plus it makes it even simpler to maintain top-notch hygiene standards in the area around the appliance. All of that makes life significantly easier for care staff while simultaneously enhancing both staff and patient safety. This cleaning and disinfection appliance offers especially significant benefits for intensive care units and isolation wards, eliminating the need to carry contaminated care utensils, such as bedpans and urine bottles, along the corridors and keeping each care utensil assigned to one particular patient.
When it comes to cleaning care utensils, patient-specific solutions are the best choice, especially in isolation wards, intensive care units, and anywhere else where you want to minimise the distance between the patient and the nearest cleaning and disinfection appliance. This appliance features a ready-to-connect installation frame and has been carefully designed to fit above the patient's toilet. Just like all cleaning and disinfection appliances in the TopLine range, the A0 value on the TopLine 30 WC can be variably adjusted (in line with DIN EN ISO 15883).
This cabinet model is the perfect addition to your existing utility room set-up. Combined with additional modules – such as the bedpan and urine bottle racks which fit perfectly above the TopLine 40 – this cleaning and disinfection appliance offers a professional and hygienic cleaning station for your utility room. The patented vapour-sealed system means that no pathogens can escape so, on this point, workplace and hygiene safety are assured. Recooling and drying systems have care utensils ready for use again in a jiffy.
The TopLine 30 wall-mounted cleaning and disinfection appliance features a ready-to-connect installation unit behind the tiled wall. That makes it a genuinely space-saving option for cleaning and disinfecting care utensils – plus it makes it even simpler to maintain top-notch hygiene standards in the area around the appliance. All of that makes life significantly easier for care staff while simultaneously enhancing both staff and patient safety. This cleaning and disinfection appliance offers especially significant benefits for intensive care units and isolation wards, eliminating the need to carry contaminated care utensils, such as bedpans and urine bottles, along the corridors and keeping each care utensil assigned to one particular patient.
Floor-standing unit with plinth for floor mounting.
This washer-disinfector can be installed and ready to go in the wink of an eye: perfect if a quick setup is what you need. This version allows you to make the best use of existing utility connections and keep your utility room up and running with virtually no disruption.
For further product information, please contact your sales partner.
The TopLine 20 with slop sink unit is an all-in-one floor-standing unit providing everything users could want in terms of hygiene, ergonomics and technology. The A0 value (according to DIN EN ISO 15883) can be adjusted according to your needs. The appliance is also completely vapour sealed and features drying and recooling systems which use filtered air, as well as a self-disinfecting water circulation system. The slop sink unit is, of course, 100% stainless steel with no flushing rim. Two nozzles provide a spiral jet of water for optimum self cleaning.
The TOPIC 40 is quick and easy to install and features both thermal and acoustic insulation. At just 900 mm x 900 mm, it is impressively compact and even creates additional work surface space with its table top. All that, and you can still expect everything from this cabinet model that you get from the floor-standing units in the TOPIC range: complete hygiene safety thanks to the A0 value control system as per DIN EN ISO 15883 and our ‘one touch’ operating concept with large membrane keys and clear icons.
The TopLine 30 wall-mounted cleaning and disinfection appliance features a ready-to-connect installation unit behind the tiled wall. That makes it a genuinely space-saving option for cleaning and disinfecting care utensils – plus it makes it even simpler to maintain top-notch hygiene standards in the area around the appliance. All of that makes life significantly easier for care staff while simultaneously enhancing both staff and patient safety. This cleaning and disinfection appliance offers especially significant benefits for intensive care units and isolation wards, eliminating the need to carry contaminated care utensils, such as bedpans and urine bottles, along the corridors and keeping each care utensil assigned to one particular patient.
The TopLine 20 with slop sink unit is an all-in-one floor-standing unit providing everything users could want in terms of hygiene, ergonomics and technology. The A0 value (according to DIN EN ISO 15883) can be adjusted according to your needs. The appliance is also completely vapour sealed and features drying and recooling systems which use filtered air, as well as a self-disinfecting water circulation system. The slop sink unit is, of course, 100% stainless steel with no flushing rim. Two nozzles provide a spiral jet of water for optimum self cleaning.
When it comes to cleaning care utensils, patient-specific solutions are the best choice, especially in isolation wards, intensive care units, and anywhere else where you want to minimise the distance between the patient and the nearest cleaning and disinfection appliance. This appliance features a ready-to-connect installation frame and has been carefully designed to fit above the patient's toilet. Just like all cleaning and disinfection appliances in the TopLine range, the A0 value on the TopLine 30 WC can be variably adjusted (in line with DIN EN ISO 15883).
This compact model provides a work surface at a useful height for more ergonomic, more pleasant work. The integrated wash basin provides care staff with an easy option for hand hygiene.
Additional modules, like drying and storage racks for urine bottles and bedpans, will turn this functional unit into a professional cleaning station in a jiffy.
For more product information please contact your sales partner.
The TopLine 20 with slop sink unit is an all-in-one floor-standing unit providing everything users could want in terms of hygiene, ergonomics and technology. The A0 value (according to DIN EN ISO 15883) can be adjusted according to your needs. The appliance is also completely vapour sealed and features drying and recooling systems which use filtered air, as well as a self-disinfecting water circulation system. The slop sink unit is, of course, 100% stainless steel with no flushing rim. Two nozzles provide a spiral jet of water for optimum self cleaning.
The TopLine 30 wall-mounted cleaning and disinfection appliance features a ready-to-connect installation unit behind the tiled wall. That makes it a genuinely space-saving option for cleaning and disinfecting care utensils – plus it makes it even simpler to maintain top-notch hygiene standards in the area around the appliance. All of that makes life significantly easier for care staff while simultaneously enhancing both staff and patient safety. This cleaning and disinfection appliance offers especially significant benefits for intensive care units and isolation wards, eliminating the need to carry contaminated care utensils, such as bedpans and urine bottles, along the corridors and keeping each care utensil assigned to one particular patient.
Individual appliance with slop sink unit for wall mounting with floor clearance.
This washer-disinfector features an integrated stainless steel slop sink unit, making it the perfect small combined care unit with floor clearance that makes it easy to keep clean.
The funnel-shaped slop sink unit for dirty water comes with no flushing rim, i.e. with no slit for the water. It comes with spiral flushing. This system uses two self-cleaning and easily replaced nozzles to generate water jets.
For further product information, please contact your sales partner.
This cabinet model is the perfect addition to any utility room set-up, be it pre-existing or completely new. Compact dimensions make for a good fit underneath the work surface – maximising the work surface space available.
When combined with additional items like shelves to be installed above the washer-disinfector, this version creates an excellent environment for hygienically safe care utensil cleaning and storage.
For more product information please contact your sales partner.
The TopLine 20 with slop sink unit is an all-in-one floor-standing unit providing everything users could want in terms of hygiene, ergonomics and technology. The A0 value (according to DIN EN ISO 15883) can be adjusted according to your needs. The appliance is also completely vapour sealed and features drying and recooling systems which use filtered air, as well as a self-disinfecting water circulation system. The slop sink unit is, of course, 100% stainless steel with no flushing rim. Two nozzles provide a spiral jet of water for optimum self cleaning.
This compact model provides a work surface at a useful height for more ergonomic, more pleasant work. The integrated wash basin provides care staff with an easy option for hand hygiene.
Additional modules, like drying and storage racks for urine bottles and bedpans, will turn this functional unit into a professional cleaning station in a jiffy.
For more product information please contact your sales partner.
This cabinet model is the perfect addition to any utility room set-up, be it pre-existing or completely new. Compact dimensions make for a good fit underneath the work surface – maximising the work surface space available.
When combined with additional items like shelves to be installed above the washer-disinfector, this version creates an excellent environment for hygienically safe care utensil cleaning and storage.
For more product information please contact your sales partner.
The installation frame is completely ready to connect and it disappears behind the tiled wall. The additional central connection connects to any industry-standard WC, meaning the washer-disinfector can be positioned immediately above the toilet – ideal for integrating into ensuite bathrooms and patient bedrooms.
When it comes to cleaning care utensils, patient-specific solutions are the best choice, especially in isolation wards, intensive care units, and anywhere else where you want to minimise the distance between the patient and the nearest washer-disinfector.
For more product information please contact your sales partner.
Individual appliance for wall mounting with floor clearance.
This washer-disinfector saves space and provides 20 cm floor clearance to make it convenient to keep machine surroundings clean and hygienic. The area can be cleaned easily, with no tricky corners.
For further product information, please contact your sales partner.
The installation frame is completely ready to connect and it disappears behind the tiled wall. The additional central connection connects to any industry-standard WC, meaning the washer-disinfector can be positioned immediately above the toilet – ideal for integrating into ensuite bathrooms and patient bedrooms.
When it comes to cleaning care utensils, patient-specific solutions are the best choice, especially in isolation wards, intensive care units, and anywhere else where you want to minimise the distance between the patient and the nearest washer-disinfector.
For more product information please contact your sales partner.
This compact model provides a work surface at a useful height for more ergonomic, more pleasant work. The integrated wash basin provides care staff with an easy option for hand hygiene.
Additional modules, like drying and storage racks for urine bottles and bedpans, will turn this functional unit into a professional cleaning station in a jiffy.
For more product information please contact your sales partner.
This model saves space. You see, the ready-to-connect installation frame disappears into the tiled wall making it even easier to keep the space around the appliance clean. This version is ideal for furnishing patient rooms.
This integrated version offers a key benefit for intensive care units and isolation wards: it eliminates the need to carry contaminated care utensils, such as bedpans and urine bottles, along the corridors, instead keeping each care utensil assigned to one particular patient.
For further product information, please contact your sales partner.
For more product information please contact your sales partner.
This model saves space. You see, the ready-to-connect installation frame disappears into the tiled wall making it even easier to keep the space around the appliance clean. This version is ideal for furnishing patient rooms.
This integrated version offers a key benefit for intensive care units and isolation wards: it eliminates the need to carry contaminated care utensils, such as bedpans and urine bottles, along the corridors, instead keeping each care utensil assigned to one particular patient.
For further product information, please contact your sales partner.
For more product information please contact your sales partner.
This washer-disinfector with slop sink unit will meet all your needs when it comes to hygiene, ergonomics and even time. Especially at the installation stage. Simply position and plug in: the dirty utility room can remain fully operational.
The slop sink unit does not use a flushing rim and it is made from 100% stainless steel. It comes with spiral flushing. This system uses two self-cleaning and easily replaced nozzles to generate water jets.
For more product information please contact your sales partner.
This cabinet model is the perfect addition to any utility room set-up, be it pre-existing or completely new. Compact dimensions make for a good fit underneath the work surface – maximising the work surface space available.
When combined with additional items like shelves to be installed above the washer-disinfector, this version creates an excellent environment for hygienically safe care utensil cleaning and storage.
For more product information please contact your sales partner.
This small combined care unit could not be any more compact: it features a washer-disinfector and wall-mounted slop sink unit. The slop sink unit is made from stainless steel with no flushing rim, removing one of the typical breeding grounds for waterborne pathogens and biofilms and thus boosting hygiene safety.
For further product information, please contact your sales partner.
This washer-disinfector with slop sink unit will meet all your needs when it comes to hygiene, ergonomics and even time. Especially at the installation stage. Simply position and plug in: the dirty utility room can remain fully operational.
The slop sink unit does not use a flushing rim and it is made from 100% stainless steel. It comes with spiral flushing. This system uses two self-cleaning and easily replaced nozzles to generate water jets.
For more product information please contact your sales partner.
This washer-disinfector can be installed and ready to go in the wink of an eye: perfect if a quick setup is what you need. This version allows you to make the best use of existing utility connections and keep your utility room up and running with virtually no disruption.
For more product information please contact your sales partner.
The installation frame is completely ready to connect and it disappears behind the tiled wall. The additional central connection connects to any industry-standard WC, meaning the washer-disinfector can be positioned immediately above the toilet – ideal for integrating into ensuite bathrooms and patient bedrooms.
When it comes to cleaning care utensils, patient-specific solutions are the best choice, especially in isolation wards, intensive care units, and anywhere else where you want to minimise the distance between the patient and the nearest washer-disinfector.
For more product information please contact your sales partner.
This washer-disinfector can be installed and ready to go in the wink of an eye: perfect if a quick setup is what you need. This version allows you to make the best use of existing utility connections and keep your utility room up and running with virtually no disruption.
For more product information please contact your sales partner.
This washer-disinfector features an integrated stainless steel slop sink unit, making it the perfect small combined care unit. Plus, its floor clearance makes it easy to keep clean.
The funnel-shaped slop sink unit for hygiene purposes comes with no flushing rim, i.e. with no slit for the water. It comes with spiral flushing. This system uses two self-cleaning and easily replaced nozzles to generate water jets.
For more product information please contact your sales partner.
Utility rooms are often so small that you need to make clever use of every last centimetre. This small combined care unit impresses with easy installation and versatile functionality. Plus: it is easy to integrate into an existing utility room. For hygiene safety in tiny spaces.
For further product information, please contact your sales partner.
This model saves space. You see, the ready-to-connect installation frame disappears into the tiled wall making it even easier to keep the space around the appliance clean. This version is ideal for furnishing patient rooms.
This integrated version offers a key benefit for intensive care units and isolation wards: it eliminates the need to carry contaminated care utensils, such as bedpans and urine bottles, along the corridors, instead keeping each care utensil assigned to one particular patient.
For more product information please contact your sales partner.
A miniature system for maximum performance: this small combined care unit uses a washer-disinfector, a table top and a hand wash basin. It is a popular solution for quickly and hygienically cleaning care utensils. The results: hygienic workflows, clever ergonomics and optimum use of space.
For further product information, please contact your sales partner.
This washer-disinfector features an integrated stainless steel slop sink unit, making it the perfect small combined care unit. Plus, its floor clearance makes it easy to keep clean.
The funnel-shaped slop sink unit for hygiene purposes comes with no flushing rim, i.e. with no slit for the water. It comes with spiral flushing. This system uses two self-cleaning and easily replaced nozzles to generate water jets.
For more product information please contact your sales partner.
The cleaning and disinfection appliance is combined with a hand wash basin to provide even more opportunities for good hygiene in the utility room. So if you're looking to promote compliance with hand hygiene in hospital settings, this is the perfect choice of all-in-one unit. This user-friendly system can easily be combined with additional modules, such as shelving for storing bedpans and the like, to create a truly professional cleaning station. Air drying and recooling using filtered air (with a HEPA filter) contribute to especially hygienic cleaning results.
The cleaning and disinfection appliance is combined with a hand wash basin to provide even more opportunities for good hygiene in the utility room. So if you're looking to promote compliance with hand hygiene in hospital settings, this is the perfect choice of all-in-one unit. This user-friendly system can easily be combined with additional modules, such as shelving for storing bedpans and the like, to create a truly professional cleaning station. Air drying and recooling using filtered air (with a HEPA filter) contribute to especially hygienic cleaning results.
This washer-disinfector with slop sink unit will meet all your needs when it comes to hygiene, ergonomics and even time. Especially at the installation stage. Simply position and plug in: the dirty utility room can remain fully operational.
The slop sink unit does not use a flushing rim and it is made from 100% stainless steel. It comes with spiral flushing. This system uses two self-cleaning and easily replaced nozzles to generate water jets.
For more product information please contact your sales partner.
The cleaning and disinfection appliance is combined with a hand wash basin to provide even more opportunities for good hygiene in the utility room. So if you're looking to promote compliance with hand hygiene in hospital settings, this is the perfect choice of all-in-one unit. This user-friendly system can easily be combined with additional modules, such as shelving for storing bedpans and the like, to create a truly professional cleaning station. Air drying and recooling using filtered air (with a HEPA filter) contribute to especially hygienic cleaning results.
Hygiene design made compact: this floor-standing unit is quick to install and ready to go. Like its siblings, this model is wonderfully flexible thanks to its multifunctional care utensil holder concept using the best technology in a robust, stainless steel design.
The floor-standing TOPIC washer-disinfector is the right choice. Quick and easy to install, it also takes up a minimal amount of space. We know that just quick installation and ease of use with our ‘one touch’ operating concept won't cut it: hygiene safety cannot suffer. And it doesn't. The programme cycles on the TOPIC can be individually adjusted using the A0 value control system as per DIN EN ISO 15883.
This cabinet model is the perfect addition to your existing utility room set-up. Combined with additional modules – such as the bedpan and urine bottle racks which fit perfectly above the TopLine 40 – this cleaning and disinfection appliance offers a professional and hygienic cleaning station for your utility room. The patented vapour-sealed system means that no pathogens can escape so, on this point, workplace and hygiene safety are assured. Recooling and drying systems have care utensils ready for use again in a jiffy.
This cabinet model is the perfect addition to your existing utility room set-up. Combined with additional modules – such as the bedpan and urine bottle racks which fit perfectly above the TopLine 40 – this cleaning and disinfection appliance offers a professional and hygienic cleaning station for your utility room. The patented vapour-sealed system means that no pathogens can escape so, on this point, workplace and hygiene safety are assured. Recooling and drying systems have care utensils ready for use again in a jiffy.
This washer-disinfector can be installed and ready to go in the wink of an eye: perfect if a quick setup is what you need. This version allows you to make the best use of existing utility connections and keep your utility room up and running with virtually no disruption.
For more product information please contact your sales partner.
When it comes to cleaning care utensils, patient-specific solutions are the best choice, especially in isolation wards, intensive care units, and anywhere else where you want to minimise the distance between the patient and the nearest cleaning and disinfection appliance. This appliance features a ready-to-connect installation frame and has been carefully designed to fit above the patient's toilet. Just like all cleaning and disinfection appliances in the TopLine range, the A0 value on the TopLine 30 WC can be variably adjusted (in line with DIN EN ISO 15883).
The TopLine 30 wall-mounted cleaning and disinfection appliance features a ready-to-connect installation unit behind the tiled wall. That makes it a genuinely space-saving option for cleaning and disinfecting care utensils – plus it makes it even simpler to maintain top-notch hygiene standards in the area around the appliance. All of that makes life significantly easier for care staff while simultaneously enhancing both staff and patient safety. This cleaning and disinfection appliance offers especially significant benefits for intensive care units and isolation wards, eliminating the need to carry contaminated care utensils, such as bedpans and urine bottles, along the corridors and keeping each care utensil assigned to one particular patient.
The TOPIC 40 is quick and easy to install and features both thermal and acoustic insulation. At just 900 mm x 900 mm, it is impressively compact and even creates additional work surface space with its table top. All that, and you can still expect everything from this cabinet model that you get from the floor-standing units in the TOPIC range: complete hygiene safety thanks to the A0 value control system as per DIN EN ISO 15883 and our ‘one touch’ operating concept with large membrane keys and clear icons.
The TopLine 20 with slop sink unit is an all-in-one floor-standing unit providing everything users could want in terms of hygiene, ergonomics and technology. The A0 value (according to DIN EN ISO 15883) can be adjusted according to your needs. The appliance is also completely vapour sealed and features drying and recooling systems which use filtered air, as well as a self-disinfecting water circulation system. The slop sink unit is, of course, 100% stainless steel with no flushing rim. Two nozzles provide a spiral jet of water for optimum self cleaning.
This cabinet model is the perfect addition to your existing utility room set-up. Combined with additional modules – such as the bedpan and urine bottle racks which fit perfectly above the TopLine 40 – this cleaning and disinfection appliance offers a professional and hygienic cleaning station for your utility room. The patented vapour-sealed system means that no pathogens can escape so, on this point, workplace and hygiene safety are assured. Recooling and drying systems have care utensils ready for use again in a jiffy.
When it comes to cleaning care utensils, patient-specific solutions are the best choice, especially in isolation wards, intensive care units, and anywhere else where you want to minimise the distance between the patient and the nearest cleaning and disinfection appliance. This appliance features a ready-to-connect installation frame and has been carefully designed to fit above the patient's toilet. Just like all cleaning and disinfection appliances in the TopLine range, the A0 value on the TopLine 30 WC can be variably adjusted (in line with DIN EN ISO 15883).
Making life easier: simply pop in place the TopLine 20 cleaning and disinfection appliance and plug it in. That means you can make the best use of existing utility connections and keep your utility room up and running with virtually no disruption. The TopLine 20 cleaning and disinfection appliance is also amazingly practical due to the speed of installation, using a plinth for floor mounting. Convenient working height and carefully calculated dimensions (500 mm x 1,730 mm) make for outstanding ergonomic credentials and hygiene safety. That makes it safer and easier to use, boosting staff motivation and fulfilling health and safety requirements.
This washer-disinfector features an integrated stainless steel slop sink unit, making it the perfect small combined care unit. Plus, its floor clearance makes it easy to keep clean.
The funnel-shaped slop sink unit for hygiene purposes comes with no flushing rim, i.e. with no slit for the water. It comes with spiral flushing. This system uses two self-cleaning and easily replaced nozzles to generate water jets.
For more product information please contact your sales partner.
This cleaning and disinfection appliance features an integrated, stainless steel slop sink, making it an ideal small combined care unit. It measures just 1.0 m in width, making it a space-saving installation which can easily slot in with the existing equipment in your utility room. The funnel-shaped slop sink unit for hygiene purposes comes with no flushing rim, i.e. with no slit for the water. Instead, a spiral water jet acts as the optimum self-cleaning feature for the slop sink funnel. If the slop sink is out of use for an extended period, an optional time switch is available to start slop sink flushing automatically once a day.
When it comes to cleaning care utensils, patient-specific solutions are the best choice, especially in isolation wards, intensive care units, and anywhere else where you want to minimise the distance between the patient and the nearest cleaning and disinfection appliance. This appliance features a ready-to-connect installation frame and has been carefully designed to fit above the patient's toilet. Just like all cleaning and disinfection appliances in the TopLine range, the A0 value on the TopLine 30 WC can be variably adjusted (in line with DIN EN ISO 15883).
The TopLine 10 boasts compact dimensions (500 mm x 1,630 mm) and is mounted on the wall, giving you floor clearance – for even better hygiene in the area surrounding the appliance. This solution makes the area easier to clean and maintain with no tricky corners and nothing in the way. This space-saving cleaning and disinfection appliance is great for tricky spaces where fitting in medical technology can be a challenge. The TopLine 10 is delivered ready to connect. This is the perfect appliance for creating a safer environment for staff, patients and care home residents.
The TopLine 30 wall-mounted cleaning and disinfection appliance features a ready-to-connect installation unit behind the tiled wall. That makes it a genuinely space-saving option for cleaning and disinfecting care utensils – plus it makes it even simpler to maintain top-notch hygiene standards in the area around the appliance. All of that makes life significantly easier for care staff while simultaneously enhancing both staff and patient safety. This cleaning and disinfection appliance offers especially significant benefits for intensive care units and isolation wards, eliminating the need to carry contaminated care utensils, such as bedpans and urine bottles, along the corridors and keeping each care utensil assigned to one particular patient.
This cabinet model is the perfect addition to any utility room set-up, be it pre-existing or completely new. Compact dimensions make for a good fit underneath the work surface – maximising the work surface space available.
When combined with additional items like shelves to be installed above the washer-disinfector, this version creates an excellent environment for hygienically safe care utensil cleaning and storage.
For more product information please contact your sales partner.
The TopLine 30 wall-mounted cleaning and disinfection appliance features a ready-to-connect installation unit behind the tiled wall. That makes it a genuinely space-saving option for cleaning and disinfecting care utensils – plus it makes it even simpler to maintain top-notch hygiene standards in the area around the appliance. All of that makes life significantly easier for care staff while simultaneously enhancing both staff and patient safety. This cleaning and disinfection appliance offers especially significant benefits for intensive care units and isolation wards, eliminating the need to carry contaminated care utensils, such as bedpans and urine bottles, along the corridors and keeping each care utensil assigned to one particular patient.
Top-notch standards of hygiene and safety are absolutely essential in hospital wards and care homes. That’s why the new TopClean 60 multi-washer is designed to clean and disinfect just about anything you might find on a ward. From wash basins, trays and vases to operating theatre boots and even children’s toys, this all-round washer-disinfector offers a simple, fast and reliable means of getting things perfectly clean. With the option of choosing between thermal or chemo-thermal disinfection, you can also wash heat-sensitive materials such as operating theatre boots thoroughly and hygienically.
The innovative TopClean 60 multi-washer is the perfect way to meet hygiene requirements while simultaneously fulfilling work safety guidelines and leveraging maximum value from your investment. It can be used to clean and disinfect equipment and utensils fast and hygienically in a wide range of settings – from hospitals and nurseries to beauty salons.
The TopLine 20 with slop sink unit is an all-in-one floor-standing unit providing everything users could want in terms of hygiene, ergonomics and technology. The A0 value (according to DIN EN ISO 15883) can be adjusted according to your needs. The appliance is also completely vapour sealed and features drying and recooling systems which use filtered air, as well as a self-disinfecting water circulation system. The slop sink unit is, of course, 100% stainless steel with no flushing rim. Two nozzles provide a spiral jet of water for optimum self cleaning.
The TopLine 20 with slop sink unit is an all-in-one floor-standing unit providing everything users could want in terms of hygiene, ergonomics and technology. The A0 value (according to DIN EN ISO 15883) can be adjusted according to your needs. The appliance is also completely vapour sealed and features drying and recooling systems which use filtered air, as well as a self-disinfecting water circulation system. The slop sink unit is, of course, 100% stainless steel with no flushing rim. Two nozzles provide a spiral jet of water for optimum self cleaning.
And this is the only respirator washer of its size that can clean and disinfect regulators even while they are still pressurised.
TopClean M sets new standards in efficiency, speed and flexibility, cleaning and disinfecting up to 40 masks or 80 regulators an hour in an innovative chemo-thermal disinfection process.
Designed to be ergonomic and easy to use, the respirator washer also offers reliable and reproducible hygienic cleaning results which fully adhere to both safety guidelines and mask manufacturers' instructions – just some of the many benefits offered by TopClean M.
TopClean M can simplify your workflow and increase the productivity of your equipment workshop so that the equipment your team needs for their next call-out will be ready for action in no time. It's never been easier to ensure you stick to the Personal Protective Equipment (PPE) guidelines.
Developed and tested in collaboration with specialists from the fire service
The idea behind the TopClean M respirator washer evolved directly from real-life fire service operations. That's why TopClean M is so perfectly suited to the special requirements of respiratory protection equipment cleaning and disinfection – and why it is such a great choice for any respiratory equipment workshop.
Top-notch standards of hygiene and safety are absolutely essential in hospital wards and care homes. That’s why the new TopClean 60 multi-washer is designed to clean and disinfect just about anything you might find on a ward. From wash basins, trays and vases to operating theatre boots and even children’s toys, this all-round washer-disinfector offers a simple, fast and reliable means of getting things perfectly clean. With the option of choosing between thermal or chemo-thermal disinfection, you can also wash heat-sensitive materials such as operating theatre boots thoroughly and hygienically.
The innovative TopClean 60 multi-washer is the perfect way to meet hygiene requirements while simultaneously fulfilling work safety guidelines and leveraging maximum value from your investment. It can be used to clean and disinfect equipment and utensils fast and hygienically in a wide range of settings – from hospitals and nurseries to beauty salons.
A large wash basin (500 x 400 x 300 mm) is combined with a slop sink unit, a base cabinet and our washer-disinfector. Everything fits underneath a spacious work surface. Functional and practical. With everything neatly contained under the counter, there's plenty of room left for shelving to store bedpans and urine bottles.
For further product information, please contact your sales partner.
And this is the only respirator washer of its size that can clean and disinfect regulators even while they are still pressurised.
TopClean M sets new standards in efficiency, speed and flexibility, cleaning and disinfecting up to 40 masks or 80 regulators an hour in an innovative chemo-thermal disinfection process.
Designed to be ergonomic and easy to use, the respirator washer also offers reliable and reproducible hygienic cleaning results which fully adhere to both safety guidelines and mask manufacturers' instructions – just some of the many benefits offered by TopClean M.
TopClean M can simplify your workflow and increase the productivity of your equipment workshop so that the equipment your team needs for their next call-out will be ready for action in no time. It's never been easier to ensure you stick to the Personal Protective Equipment (PPE) guidelines.
Developed and tested in collaboration with specialists from the fire service
The idea behind the TopClean M respirator washer evolved directly from real-life fire service operations. That's why TopClean M is so perfectly suited to the special requirements of respiratory protection equipment cleaning and disinfection – and why it is such a great choice for any respiratory equipment workshop.
Top-notch standards of hygiene and safety are absolutely essential in hospital wards and care homes. That’s why the new TopClean 60 multi-washer is designed to clean and disinfect just about anything you might find on a ward. From wash basins, trays and vases to operating theatre boots and even children’s toys, this all-round washer-disinfector offers a simple, fast and reliable means of getting things perfectly clean. With the option of choosing between thermal or chemo-thermal disinfection, you can also wash heat-sensitive materials such as operating theatre boots thoroughly and hygienically.
The innovative TopClean 60 multi-washer is the perfect way to meet hygiene requirements while simultaneously fulfilling work safety guidelines and leveraging maximum value from your investment. It can be used to clean and disinfect equipment and utensils fast and hygienically in a wide range of settings – from hospitals and nurseries to beauty salons.
Top-notch standards of hygiene and safety are absolutely essential in hospital wards and care homes. That’s why the new TopClean 60 multi-washer is designed to clean and disinfect just about anything you might find on a ward. From wash basins, trays and vases to operating theatre boots and even children’s toys, this all-round washer-disinfector offers a simple, fast and reliable means of getting things perfectly clean. With the option of choosing between thermal or chemo-thermal disinfection, you can also wash heat-sensitive materials such as operating theatre boots thoroughly and hygienically.
The innovative TopClean 60 multi-washer is the perfect way to meet hygiene requirements while simultaneously fulfilling work safety guidelines and leveraging maximum value from your investment. It can be used to clean and disinfect equipment and utensils fast and hygienically in a wide range of settings – from hospitals and nurseries to beauty salons.
And this is the only respirator washer of its size that can clean and disinfect regulators even while they are still pressurised.
TopClean M sets new standards in efficiency, speed and flexibility, cleaning and disinfecting up to 40 masks or 80 regulators an hour in an innovative chemo-thermal disinfection process.
Designed to be ergonomic and easy to use, the respirator washer also offers reliable and reproducible hygienic cleaning results which fully adhere to both safety guidelines and mask manufacturers' instructions – just some of the many benefits offered by TopClean M.
TopClean M can simplify your workflow and increase the productivity of your equipment workshop so that the equipment your team needs for their next call-out will be ready for action in no time. It's never been easier to ensure you stick to the Personal Protective Equipment (PPE) guidelines.
Developed and tested in collaboration with specialists from the fire service
The idea behind the TopClean M respirator washer evolved directly from real-life fire service operations. That's why TopClean M is so perfectly suited to the special requirements of respiratory protection equipment cleaning and disinfection – and why it is such a great choice for any respiratory equipment workshop.
And this is the only respirator washer of its size that can clean and disinfect regulators even while they are still pressurised.
TopClean M sets new standards in efficiency, speed and flexibility, cleaning and disinfecting up to 40 masks or 80 regulators an hour in an innovative chemo-thermal disinfection process.
Designed to be ergonomic and easy to use, the respirator washer also offers reliable and reproducible hygienic cleaning results which fully adhere to both safety guidelines and mask manufacturers' instructions – just some of the many benefits offered by TopClean M.
TopClean M can simplify your workflow and increase the productivity of your equipment workshop so that the equipment your team needs for their next call-out will be ready for action in no time. It's never been easier to ensure you stick to the Personal Protective Equipment (PPE) guidelines.
Developed and tested in collaboration with specialists from the fire service
The idea behind the TopClean M respirator washer evolved directly from real-life fire service operations. That's why TopClean M is so perfectly suited to the special requirements of respiratory protection equipment cleaning and disinfection – and why it is such a great choice for any respiratory equipment workshop.
And this is the only respirator washer of its size that can clean and disinfect regulators even while they are still pressurised.
TopClean M sets new standards in efficiency, speed and flexibility, cleaning and disinfecting up to 40 masks or 80 regulators an hour in an innovative chemo-thermal disinfection process.
Designed to be ergonomic and easy to use, the respirator washer also offers reliable and reproducible hygienic cleaning results which fully adhere to both safety guidelines and mask manufacturers' instructions – just some of the many benefits offered by TopClean M.
TopClean M can simplify your workflow and increase the productivity of your equipment workshop so that the equipment your team needs for their next call-out will be ready for action in no time. It's never been easier to ensure you stick to the Personal Protective Equipment (PPE) guidelines.
Developed and tested in collaboration with specialists from the fire service
The idea behind the TopClean M respirator washer evolved directly from real-life fire service operations. That's why TopClean M is so perfectly suited to the special requirements of respiratory protection equipment cleaning and disinfection – and why it is such a great choice for any respiratory equipment workshop.
Top-notch standards of hygiene and safety are absolutely essential in hospital wards and care homes. That’s why the new TopClean 60 multi-washer is designed to clean and disinfect just about anything you might find on a ward. From wash basins, trays and vases to operating theatre boots and even children’s toys, this all-round washer-disinfector offers a simple, fast and reliable means of getting things perfectly clean. With the option of choosing between thermal or chemo-thermal disinfection, you can also wash heat-sensitive materials such as operating theatre boots thoroughly and hygienically.
The innovative TopClean 60 multi-washer is the perfect way to meet hygiene requirements while simultaneously fulfilling work safety guidelines and leveraging maximum value from your investment. It can be used to clean and disinfect equipment and utensils fast and hygienically in a wide range of settings – from hospitals and nurseries to beauty salons.
And this is the only respirator washer of its size that can clean and disinfect regulators even while they are still pressurised. TopClean M sets new standards in efficiency, speed and flexibility, cleaning and disinfecting up to 40 masks or 80 regulators an hour in an innovative chemo-thermal disinfection process. Designed to be ergonomic and easy to use, the respirator washer also offers reliable and reproducible hygienic cleaning results which fully adhere to both safety guidelines and mask manufacturers' instructions – just some of the many benefits offered by TopClean M.
TopClean M can simplify your workflow and increase the productivity of your equipment workshop so that the equipment your team needs for their next call-out will be ready for action in no time. It's never been easier to ensure you stick to the Personal Protective Equipment (PPE) guidelines. Developed and tested in collaboration with specialists from the fire service. The idea behind the TopClean M respirator washer evolved directly from real-life fire service operations. That's why TopClean M is so perfectly suited to the special requirements of respiratory protection equipment cleaning and disinfection – and why it is such a great choice for any respiratory equipment workshop.
The TopLine 40 cabinet model washer-disinfector combines with a hand wash basin in a compact footprint, creating more space to get things done. This compact all-in-one model puts the work surface and hand wash basin at an ergonomically ideal height, making work easy.
For further product information, please contact your sales partner.
And this is the only respirator washer of its size that can clean and disinfect regulators even while they are still pressurised.
TopClean M sets new standards in efficiency, speed and flexibility, cleaning and disinfecting up to 40 masks or 80 regulators an hour in an innovative chemo-thermal disinfection process.
Designed to be ergonomic and easy to use, the respirator washer also offers reliable and reproducible hygienic cleaning results which fully adhere to both safety guidelines and mask manufacturers' instructions – just some of the many benefits offered by TopClean M.
TopClean M can simplify your workflow and increase the productivity of your equipment workshop so that the equipment your team needs for their next call-out will be ready for action in no time. It's never been easier to ensure you stick to the Personal Protective Equipment (PPE) guidelines.
Developed and tested in collaboration with specialists from the fire service
The idea behind the TopClean M respirator washer evolved directly from real-life fire service operations. That's why TopClean M is so perfectly suited to the special requirements of respiratory protection equipment cleaning and disinfection – and why it is such a great choice for any respiratory equipment workshop.
The installation frame is completely ready to connect and it disappears behind the tiled wall. The additional central connection connects to any industry-standard WC, meaning the washer-disinfector can be positioned immediately above the toilet – ideal for integrating into ensuite bathrooms and patient bedrooms.
When it comes to cleaning care utensils, patient-specific solutions are the best choice, especially in isolation wards, intensive care units, and anywhere else where you want to minimise the distance between the patient and the nearest washer-disinfector.
For more product information please contact your sales partner.
This washer-disinfector is a floor standing unit with slop sink unit for quick installation and flawless bedpan treatment. With a slop sink unit with no flushing rim built in, the appliance meets all possible hygiene, ergonomic and technical requirements.
For further product information, please contact your sales partner.
This model saves space. You see, the ready-to-connect installation frame disappears into the tiled wall making it even easier to keep the space around the appliance clean. This version is ideal for furnishing patient rooms.
This integrated version offers a key benefit for intensive care units and isolation wards: it eliminates the need to carry contaminated care utensils, such as bedpans and urine bottles, along the corridors, instead keeping each care utensil assigned to one particular patient.
For further product information, please contact your sales partner.
For more product information please contact your sales partner.
This washer-disinfector with slop sink unit will meet all your needs when it comes to hygiene, ergonomics and even time. Especially at the installation stage. Simply position and plug in: the dirty utility room can remain fully operational.
The slop sink unit does not use a flushing rim and it is made from 100% stainless steel. It comes with spiral flushing. This system uses two self-cleaning and easily replaced nozzles to generate water jets.
For more product information please contact your sales partner.
This compact model provides a work surface at a useful height for more ergonomic, more pleasant work. The integrated wash basin provides care staff with an easy option for hand hygiene.
Additional modules, like drying and storage racks for urine bottles and bedpans, will turn this functional unit into a professional cleaning station in a jiffy.
For more product information please contact your sales partner.
This washer-disinfector can be installed and ready to go in the wink of an eye: perfect if a quick setup is what you need. This version allows you to make the best use of existing utility connections and keep your utility room up and running with virtually no disruption.
For more product information please contact your sales partner.
This washer-disinfector features an integrated stainless steel slop sink unit, making it the perfect small combined care unit. Plus, its floor clearance makes it easy to keep clean.
The funnel-shaped slop sink unit for hygiene purposes comes with no flushing rim, i.e. with no slit for the water. It comes with spiral flushing. This system uses two self-cleaning and easily replaced nozzles to generate water jets.
For more product information please contact your sales partner.
And this is the only respirator washer of its size that can clean and disinfect regulators even while they are still pressurised.
TopClean M sets new standards in efficiency, speed and flexibility, cleaning and disinfecting up to 40 masks or 80 regulators an hour in an innovative chemo-thermal disinfection process.
Designed to be ergonomic and easy to use, the respirator washer also offers reliable and reproducible hygienic cleaning results which fully adhere to both safety guidelines and mask manufacturers' instructions – just some of the many benefits offered by TopClean M.
TopClean M can simplify your workflow and increase the productivity of your equipment workshop so that the equipment your team needs for their next call-out will be ready for action in no time. It's never been easier to ensure you stick to the Personal Protective Equipment (PPE) guidelines.
Developed and tested in collaboration with specialists from the fire service
The idea behind the TopClean M respirator washer evolved directly from real-life fire service operations. That's why TopClean M is so perfectly suited to the special requirements of respiratory protection equipment cleaning and disinfection – and why it is such a great choice for any respiratory equipment workshop.
This cabinet model is the perfect addition to any utility room set-up, be it pre-existing or completely new. Compact dimensions make for a good fit underneath the work surface – maximising the work surface space available.
When combined with additional items like shelves to be installed above the washer-disinfector, this version creates an excellent environment for hygienically safe care utensil cleaning and storage.
For more product information please contact your sales partner.
The installation frame is completely ready to connect and it disappears behind the tiled wall. The additional central connection connects to any industry-standard WC, meaning the washer-disinfector can be positioned immediately above the toilet – ideal for integrating into ensuite bathrooms and patient bedrooms.
When it comes to cleaning care utensils, patient-specific solutions are the best choice, especially in isolation wards, intensive care units, and anywhere else where you want to minimise the distance between the patient and the nearest washer-disinfector.
For more product information please contact your sales partner.
This washer-disinfector boasts compact dimensions (500 mm x 1,630 mm) and is mounted on the wall, giving you floor clearance – for even better hygiene in the area surrounding the appliance. The area can be cleaned easily, with no tricky corners. It's so convenient with nothing in the way!
This washer-disinfector can be integrated into the wall to save space, offering a great way to equip patients' bedrooms. This washer-disinfector is especially beneficial for intensive care units and isolation wards. It eliminates the need to carry contaminated care utensils along the corridors and keeps each care utensil assigned to one particular patient.
The MEIKO TopLine 30 WC is a wall-integrated washer-disinfector for patients' bedrooms or ensuite bathrooms with an additional central connection point for all standard commercial types of flush toilet. The ideal choice for isolation rooms, intensive care units or anywhere else, where short journeys from the patient to the washer-disinfector are key.
This model saves space. You see, the ready-to-connect installation frame disappears into the tiled wall making it even easier to keep the space around the appliance clean. This version is ideal for furnishing patient rooms.
This integrated version offers a key benefit for intensive care units and isolation wards: it eliminates the need to carry contaminated care utensils, such as bedpans and urine bottles, along the corridors, instead keeping each care utensil assigned to one particular patient.
For further product information, please contact your sales partner.
For more product information please contact your sales partner.
This washer-disinfector with slop sink unit will meet all your needs when it comes to hygiene, ergonomics and even time. Especially at the installation stage. Simply position and plug in: the dirty utility room can remain fully operational.
The slop sink unit does not use a flushing rim and it is made from 100% stainless steel. It comes with spiral flushing. This system uses two self-cleaning and easily replaced nozzles to generate water jets.
For more product information please contact your sales partner.
This washer-disinfector can be installed and ready to go in the wink of an eye: perfect if a quick setup is what you need. This version allows you to make the best use of existing utility connections and keep your utility room up and running with virtually no disruption.
For more product information please contact your sales partner.
This washer-disinfector features an integrated stainless steel slop sink unit, making it the perfect small combined care unit. Plus, its floor clearance makes it easy to keep clean.
The funnel-shaped slop sink unit for hygiene purposes comes with no flushing rim, i.e. with no slit for the water. It comes with spiral flushing. This system uses two self-cleaning and easily replaced nozzles to generate water jets.
For more product information please contact your sales partner.
The cleaning and disinfection appliance is combined with a hand wash basin to provide even more opportunities for good hygiene in the utility room. So if you're looking to promote compliance with hand hygiene in hospital settings, this is the perfect choice of all-in-one unit. This user-friendly system can easily be combined with additional modules, such as shelving for storing bedpans and the like, to create a truly professional cleaning station. Air drying and recooling using filtered air (with a HEPA filter) contribute to especially hygienic cleaning results.
This cabinet model is the perfect addition to your existing utility room set-up. Combined with additional modules – such as the bedpan and urine bottle racks which fit perfectly above the TopLine 40 – this cleaning and disinfection appliance offers a professional and hygienic cleaning station for your utility room. The patented vapour-sealed system means that no pathogens can escape so, on this point, workplace and hygiene safety are assured. Recooling and drying systems have care utensils ready for use again in a jiffy.
When it comes to cleaning care utensils, patient-specific solutions are the best choice, especially in isolation wards, intensive care units, and anywhere else where you want to minimise the distance between the patient and the nearest cleaning and disinfection appliance. This appliance features a ready-to-connect installation frame and has been carefully designed to fit above the patient's toilet. Just like all cleaning and disinfection appliances in the TopLine range, the A0 value on the TopLine 30 WC can be variably adjusted (in line with DIN EN ISO 15883).
The TopLine 30 wall-mounted cleaning and disinfection appliance features a ready-to-connect installation unit behind the tiled wall. That makes it a genuinely space-saving option for cleaning and disinfecting care utensils – plus it makes it even simpler to maintain top-notch hygiene standards in the area around the appliance. All of that makes life significantly easier for care staff while simultaneously enhancing both staff and patient safety. This cleaning and disinfection appliance offers especially significant benefits for intensive care units and isolation wards, eliminating the need to carry contaminated care utensils, such as bedpans and urine bottles, along the corridors and keeping each care utensil assigned to one particular patient.
The TopLine 20 with slop sink unit is an all-in-one floor-standing unit providing everything users could want in terms of hygiene, ergonomics and technology. The A0 value (according to DIN EN ISO 15883) can be adjusted according to your needs. The appliance is also completely vapour sealed and features drying and recooling systems which use filtered air, as well as a self-disinfecting water circulation system. The slop sink unit is, of course, 100% stainless steel with no flushing rim. Two nozzles provide a spiral jet of water for optimum self cleaning.
Making life easier: simply pop in place the TopLine 20 cleaning and disinfection appliance and plug it in. That means you can make the best use of existing utility connections and keep your utility room up and running with virtually no disruption. The TopLine 20 cleaning and disinfection appliance is also amazingly practical due to the speed of installation, using a plinth for floor mounting. Convenient working height and carefully calculated dimensions (500 mm x 1,730 mm) make for outstanding ergonomic credentials and hygiene safety. That makes it safer and easier to use, boosting staff motivation and fulfilling health and safety requirements.
This cleaning and disinfection appliance features an integrated, stainless steel slop sink, making it an ideal small combined care unit. It measures just 1.0 m in width, making it a space-saving installation which can easily slot in with the existing equipment in your utility room. The funnel-shaped slop sink unit for hygiene purposes comes with no flushing rim, i.e. with no slit for the water. Instead, a spiral water jet acts as the optimum self-cleaning feature for the slop sink funnel. If the slop sink is out of use for an extended period, an optional time switch is available to start slop sink flushing automatically once a day.
The TopLine 10 boasts compact dimensions (500 mm x 1,630 mm) and is mounted on the wall, giving you floor clearance – for even better hygiene in the area surrounding the appliance. This solution makes the area easier to clean and maintain with no tricky corners and nothing in the way. This space-saving cleaning and disinfection appliance is great for tricky spaces where fitting in medical technology can be a challenge. The TopLine 10 is delivered ready to connect. This is the perfect appliance for creating a safer environment for staff, patients and care home residents.
Top-notch standards of hygiene and safety are absolutely essential in hospital wards and care homes. That’s why the new TopClean 60 multi-washer is designed to clean and disinfect just about anything you might find on a ward. From wash basins, trays and vases to operating theatre boots and even children’s toys, this all-round washer-disinfector offers a simple, fast and reliable means of getting things perfectly clean. With the option of choosing between thermal or chemo-thermal disinfection, you can also wash heat-sensitive materials such as operating theatre boots thoroughly and hygienically.
The innovative TopClean 60 multi-washer is the perfect way to meet hygiene requirements while simultaneously fulfilling work safety guidelines and leveraging maximum value from your investment. It can be used to clean and disinfect equipment and utensils fast and hygienically in a wide range of settings – from hospitals and nurseries to beauty salons.
And this is the only respirator washer of its size that can clean and disinfect regulators even while they are still pressurised. TopClean M sets new standards in efficiency, speed and flexibility, cleaning and disinfecting up to 40 masks or 80 regulators an hour in an innovative chemo-thermal disinfection process. Designed to be ergonomic and easy to use, the respirator washer also offers reliable and reproducible hygienic cleaning results which fully adhere to both safety guidelines and mask manufacturers' instructions – just some of the many benefits offered by TopClean M.
TopClean M can simplify your workflow and increase the productivity of your equipment workshop so that the equipment your team needs for their next call-out will be ready for action in no time. It's never been easier to ensure you stick to the Personal Protective Equipment (PPE) guidelines.
Developed and tested in collaboration with specialists from the fire service. The idea behind the TopClean M respirator washer evolved directly from real-life fire service operations. That's why TopClean M is so perfectly suited to the special requirements of respiratory protection equipment cleaning and disinfection – and why it is such a great choice for any respiratory equipment workshop.
Top-notch standards of hygiene and safety are absolutely essential in hospital wards and care homes. That’s why the new TopClean 60 multi-washer is designed to clean and disinfect just about anything you might find on a ward. From wash basins, trays and vases to operating theatre boots and even children’s toys, this all-round washer-disinfector offers a simple, fast and reliable means of getting things perfectly clean. With the option of choosing between thermal or chemo-thermal disinfection, you can also wash heat-sensitive materials such as operating theatre boots thoroughly and hygienically.
The innovative TopClean 60 multi-washer is the perfect way to meet hygiene requirements while simultaneously fulfilling work safety guidelines and leveraging maximum value from your investment. It can be used to clean and disinfect equipment and utensils fast and hygienically in a wide range of settings – from hospitals and nurseries to beauty salons.
And this is the only respirator washer of its size that can clean and disinfect regulators even while they are still pressurised. TopClean M sets new standards in efficiency, speed and flexibility, cleaning and disinfecting up to 40 masks or 80 regulators an hour in an innovative chemo-thermal disinfection process.
Designed to be ergonomic and easy to use, the respirator washer also offers reliable and reproducible hygienic cleaning results which fully adhere to both safety guidelines and mask manufacturers' instructions – just some of the many benefits offered by TopClean M. TopClean M can simplify your workflow and increase the productivity of your equipment workshop so that the equipment your team needs for their next call-out will be ready for action in no time. It's never been easier to ensure you stick to the Personal Protective Equipment (PPE) guidelines.
Developed and tested in collaboration with specialists from the fire service. The idea behind the TopClean M respirator washer evolved directly from real-life fire service operations. That's why TopClean M is so perfectly suited to the special requirements of respiratory protection equipment cleaning and disinfection – and why it is such a great choice for any respiratory equipment workshop.
This compact model provides a work surface at a useful height for more ergonomic, more pleasant work. The integrated wash basin provides care staff with an easy option for hand hygiene.
Additional modules, like drying and storage racks for urine bottles and bedpans, will turn this functional unit into a professional cleaning station in a jiffy.
For more product information please contact your sales partner.
MODELS
Combined care units
MEIKO combined care units with floor-standing unit or cabinet model are available in several versions to suit the conditions in the room and customer requirements. After all, it takes more than a washer-disinfector to make a functional utility room. You will also need sufficient work surfaces, storage spaces and wash basins to ensure that processes can run optimally.
The heavyweight of the combined care units: this washer-disinfector is best as part of a multifunctional dirty utility room concept with a slop sink unit with no flushing rim, a hand wash basin with a large soak sink, and plenty of work surface space as well as incredibly generous storage space.
Further information about this product
For more product information please contact your sales partner.
The heavyweight of the combined care units: this washer-disinfector is best as part of a multifunctional dirty utility room concept with a slop sink unit with no flushing rim, a hand wash basin with a large soak sink, and plenty of work surface space as well as incredibly generous storage space.
More information about this product
For more product information please contact your sales partner.
This combined care unit offers even more than cutting edge cleaning and disinfection technology by MEIKO. That, plus a slop sink unit with no flushing rim, a generous soak sink and a hand wash basin will cover every one of your hygiene needs. Not to mention the spacious work and storage surfaces, or even the roomy storage space in the cabinet. Everything has its proper place here.
Further information about this product
For more product information please contact your sales partner.
This combined care unit offers even more than cutting edge cleaning and disinfection technology by MEIKO. That, plus a slop sink unit with no flushing rim, a generous soak sink and a hand wash basin will cover every one of your hygiene needs. Not to mention the spacious work and storage surfaces, or even the roomy storage space in the cabinet. Everything has its proper place here.
More information about this product
For more product information please contact your sales partner.
The large size makes this option incredibly versatile: soak sink, hand wash basin and MEIKO washer-disinfector come together to provide the highest standards of hygiene, plus a base cabinet for additional storage space, generous work surfaces for more space to get the job done and improved workplace ergonomics.
The slop sink unit does not use a flushing rim and it is made from 100% stainless steel. It comes with spiral flushing. This system uses two self-cleaning and easily replaced nozzles to generate water jets.
More information about this product
For more product information please contact your sales partner.
An extra large inset wash basin is combined with a slop sink unit, a base cabinet and a MEIKO washer-disinfector. The result is a truly practical, clean solution well suited to the real world and to any dirty utility room.
Since this is a cabinet solution, it provides plenty of space for drying and storage racks which can be installed above the unit. This means that clean care utensils can be unloaded in double-quick time and are better protected from recontamination with pathogens.
The slop sink unit does not use a flushing rim and it is made from 100% stainless steel. It comes with spiral flushing. This system uses two self-cleaning and easily replaced nozzles to generate water jets.
More information about this product
For more product information please contact your sales partner.
The large size makes this option incredibly versatile: soak sink, hand wash basin and MEIKO washer-disinfector come together to provide the highest standards of hygiene, plus a base cabinet for additional storage space, generous work surfaces for more space to get the job done and improved workplace ergonomics.
The slop sink unit does not use a flushing rim and it is made from 100% stainless steel. It comes with spiral flushing. This system uses two self-cleaning and easily replaced nozzles to generate water jets.
Further information about this product
This is the ideal combination if you are looking for more storage or work surfaces in the dirty utility room. An integrated slop sink unit, wash basin and base cabinet make this an incredibly practical and versatile bedpan washing system.
The slop sink unit does not use a flushing rim and it is made from 100% stainless steel. It comes with spiral flushing. This system uses two self-cleaning and easily replaced nozzles to generate water jets.
More information about this product
For more product information please contact your sales partner.
An extra large inset wash basin is combined with a slop sink unit, a base cabinet and a MEIKO washer-disinfector. The result is a truly practical, clean solution well suited to the real world and to any dirty utility room.
Since this is a cabinet solution, it provides plenty of space for drying and storage racks which can be installed above the unit. This means that clean care utensils can be unloaded in double-quick time and are better protected from recontamination with pathogens.
The slop sink unit does not use a flushing rim and it is made from 100% stainless steel. It comes with spiral flushing. This system uses two self-cleaning and easily replaced nozzles to generate water jets.
Further information about this product
For more product information please contact your sales partner.
This is the ideal combination if you are looking for more storage or work surfaces in the dirty utility room. An integrated slop sink unit, wash basin and base cabinet make this an incredibly practical and versatile bedpan washing system.
The slop sink unit does not use a flushing rim and it is made from 100% stainless steel. It comes with spiral flushing. This system uses two self-cleaning and easily replaced nozzles to generate water jets.
Further information about this product
A unit featuring an integrated slop sink unit and hand wash basin for the highest possible hygiene standards – in the smallest possible space. The height of the work surface has been positioned based on ergonomic considerations so as to provide a pleasant work environment that is conducive to good employee health.
The slop sink unit comes without a flushing rim, eliminating the gap that could otherwise provide a breeding ground for germs and biofilms. It comes with spiral flushing. This system uses two self-cleaning and easily replaced nozzles to generate water jets.
More information about this product
For more product information please contact your sales partner.
With slop sink unit, wash basin, hand wash basin, and base cabinet with three hinged doors.
The heavyweight of the combined care units: this washer-disinfector is part of a multifunctional utility room concept with a slop sink unit with no flushing rim, a hand wash basin, a large soak sink, and plenty of work surface space, as well as incredibly generous storage space.
For further product information, please contact your sales partner.
A unit featuring an integrated slop sink unit and hand wash basin for the highest possible hygiene standards – in the smallest possible space. The height of the work surface has been positioned based on ergonomic considerations so as to provide a pleasant work environment that is conducive to good employee health.
The slop sink unit comes without a flushing rim, eliminating the gap that could otherwise provide a breeding ground for germs and biofilms. It comes with spiral flushing. This system uses two self-cleaning and easily replaced nozzles to generate water jets.
Further information about this product
For more product information please contact your sales partner.
When space is a squeeze, this compact combined care unit comes into its own. That gives you plenty of room and work surface to get the job done, even in small dirty utility rooms.
The slop sink unit comes without a flushing rim, eliminating the gap that could otherwise provide a breeding ground for germs and biofilms. It comes with spiral flushing. This system uses two self-cleaning and easily replaced nozzles to generate water jets.
By including additional modules like drying or storage shelves, it is quick and easy to turn this unit into a small professional cleaning station.
More information about this product
For more product information please contact your sales partner.
When space is a squeeze, this compact combined care unit comes into its own. That gives you plenty of room and work surface to get the job done, even in small dirty utility rooms.
The slop sink unit comes without a flushing rim, eliminating the gap that could otherwise provide a breeding ground for germs and biofilms. It comes with spiral flushing. This system uses two self-cleaning and easily replaced nozzles to generate water jets.
By including additional modules like drying or storage shelves, it is quick and easy to turn this unit into a small professional cleaning station.
Further information about this product
For more product information please contact your sales partner.
Depending on your needs, this model can incorporate a bedpan washer-disinfector, work surfaces, slop sink and hand wash basin.
A compact combo unit offering powerful performance – that's what you get when you choose this automatic bedpan flusher-disinfector embedded in a custom combined sluice unit of your choice. Simply add a work surface, hygienic slop sink, and hand wash basin – plus whatever cupboard space you need – and enjoy an outstandingly compact unit that maximises hygiene in your day-to-day work. This system helps prevent the spread of dangerous bacteria which could lead to hospital-acquired infections. Simply pop it in place, connect it up, and it's ready to use! With its built-in TOPIC automatic bedpan flusher-disinfector, this combined sluice unit can also be upgraded and expanded at a later point in time, for example by adding additional cupboards, more work surface space, a larger sink or additional shelving for storing bedpans, urine bottles, kidney bowls or children's potties.
The TOPIC automatic bedpan flusher-disinfector is quick and easy to install and features both thermal and acoustic insulation, making it a convenient and hygienic choice for care homes and nursing facilities.
With slop sink unit, wash basin, hand wash basin, and base cabinet with two hinged doors.
This combined care unit offers even more than cutting edge cleaning and disinfection technology by MEIKO. That, plus a slop sink unit with no flushing rim, a generously dimensioned soak sink and a hand wash basin will cover every one of your hygiene needs. Not to mention the spacious work and storage surfaces, or even the roomy storage space in the cabinet. Everything has its proper place here.
For further product information, please contact your sales partner.
With slop sink unit, wash basin, hand wash basin, and base cabinet with hinged door.
The large size makes this option incredibly versatile: soak sink, hand wash basin and MEIKO washer-disinfector come together to provide the highest standards of hygiene, plus a base cabinet for additional storage space, generous work surfaces for more space to get the job done, and improved workplace ergonomics.
The slop sink unit does not have a flushing rim and it is made from 100% stainless steel. It comes with spiral flushing. This system uses two self-cleaning and easily replaced nozzles to generate water jets.
For further product information, please contact your sales partner.
With slop sink unit, wash basin, and base cabinet with hinged door.
An extra large inset wash basin is combined with a slop sink unit, a base cabinet and a MEIKO washer-disinfector. The result is a truly practical, clean solution, well suited to the real world and to any utility room.
Since this is a cabinet solution, it provides plenty of space for drying and storage racks which can be installed above the unit. This means that clean care utensils can be unloaded in double-quick time and are better protected from recontamination with pathogens.
The slop sink unit does not have a flushing rim and it is made from 100% stainless steel. It comes with spiral flushing. This system uses two self-cleaning and easily replaced nozzles to generate water jets.
For further product information, please contact your sales partner.
The cleaning and disinfection appliance fits into a multifunctional utility room concept with a hygienic slop sink unit, hand wash basin, an additional large wash basin and plenty of work surface space as well as incredibly generous storage space. This integrated cleaning and disinfection appliance features an adjustable A0 value control system in line with DIN EN ISO 15883 and helps ensure hygiene safety in care homes and hospitals. The hygienic slop sink unit is, of course, made from stainless steel with no flushing rim.
For more product information please contact your sales partner.
A cabinet cleaning and disinfection appliance along with complementary items make a combined care unit with cutting-edge technology (for hygiene safety and short programme cycles), incorporating an integrated slop sink with no flushing rim for hygiene purposes, a large-dimension wash basin, a hand wash basin, spacious work and storage surfaces, as well as plenty of cabinet storage – creating an ideal work environment in the utility room. There is space for everything to get hygienically clean here, providing safety for staff and patients.
For more product information please contact your sales partner.
The cleaning and disinfection appliance fits into a multifunctional utility room concept with a hygienic slop sink unit, hand wash basin, an additional large wash basin and plenty of work surface space as well as incredibly generous storage space. This integrated cleaning and disinfection appliance features an adjustable A0 value control system in line with DIN EN ISO 15883 and helps ensure hygiene safety in care homes and hospitals. The hygienic slop sink unit is, of course, made from stainless steel with no flushing rim.
For more product information please contact your sales partner.
This model shows how finding the right appliance is not just about making sure the size is right, but also getting all the features you need. This combined care unit is large on features and small on dimensions. Combining a soak sink and hand wash basin with our cleaning and disinfection appliance provides better safety and higher hygiene standards in the hospital and utility room. This combined care unit also offers hygiene safety and outstanding ergonomics, creating optimal working conditions in the care environment.
Further information about this product
With slop sink unit, hand wash basin, and base cabinet with hinged door.
This is the ideal combination if you are looking for more storage or work surfaces in the utility room. An integrated slop sink unit, wash basin and base cabinet make this an incredibly practical and versatile bedpan washing system.
The slop sink unit does not have a flushing rim and it is made from 100% stainless steel. It comes with spiral flushing. This system uses two self-cleaning and easily replaced nozzles to generate water jets.
For further product information, please contact your sales partner.
The cleaning and disinfection appliance fits into a multifunctional utility room concept with a hygienic slop sink unit, hand wash basin, an additional large wash basin and plenty of work surface space as well as incredibly generous storage space. This integrated cleaning and disinfection appliance features an adjustable A0 value control system in line with DIN EN ISO 15883 and helps ensure hygiene safety in care homes and hospitals. The hygienic slop sink unit is, of course, made from stainless steel with no flushing rim.
For more product information please contact your sales partner.
The cleaning and disinfection appliance fits into a multifunctional utility room concept with a hygienic slop sink unit, hand wash basin, an additional large wash basin and plenty of work surface space as well as incredibly generous storage space. This integrated cleaning and disinfection appliance features an adjustable A0 value control system in line with DIN EN ISO 15883 and helps ensure hygiene safety in care homes and hospitals. The hygienic slop sink unit is, of course, made from stainless steel with no flushing rim.
For more product information please contact your sales partner.
A cabinet cleaning and disinfection appliance along with complementary items make a combined care unit with cutting-edge technology (for hygiene safety and short programme cycles), incorporating an integrated slop sink with no flushing rim for hygiene purposes, a large-dimension wash basin, a hand wash basin, spacious work and storage surfaces, as well as plenty of cabinet storage – creating an ideal work environment in the utility room. There is space for everything to get hygienically clean here, providing safety for staff and patients.
For more product information please contact your sales partner.
A cabinet cleaning and disinfection appliance along with complementary items make a combined care unit with cutting-edge technology (for hygiene safety and short programme cycles), incorporating an integrated slop sink with no flushing rim for hygiene purposes, a large-dimension wash basin, a hand wash basin, spacious work and storage surfaces, as well as plenty of cabinet storage – creating an ideal work environment in the utility room. There is space for everything to get hygienically clean here, providing safety for staff and patients.
For more product information please contact your sales partner.
The cleaning and disinfection appliance fits into a multifunctional utility room concept with a hygienic slop sink unit, hand wash basin, an additional large wash basin and plenty of work surface space as well as incredibly generous storage space. This integrated cleaning and disinfection appliance features an adjustable A0 value control system in line with DIN EN ISO 15883 and helps ensure hygiene safety in care homes and hospitals. The hygienic slop sink unit is, of course, made from stainless steel with no flushing rim.
For more product information please contact your sales partner.
The SAN 20 W is an all-in-one system incorporating a cleaning and disinfection appliance, a slop sink unit, a large-dimension wash basin and a roomy cupboard space. With everything neatly contained under the counter, there's plenty of room left to mount bedpan and urine bottle racks on the wall. That keeps clean care utensils safely out of the way of work and protects them from re-contamination with dangerous hospital pathogens. The wash basin is inset and extra large.
For more product information please contact your sales partner.
This model shows how finding the right appliance is not just about making sure the size is right, but also getting all the features you need. This combined care unit is large on features and small on dimensions. Combining a soak sink and hand wash basin with our cleaning and disinfection appliance provides better safety and higher hygiene standards in the hospital and utility room. This combined care unit also offers hygiene safety and outstanding ergonomics, creating optimal working conditions in the care environment.
A cabinet cleaning and disinfection appliance along with complementary items make a combined care unit with cutting-edge technology (for hygiene safety and short programme cycles), incorporating an integrated slop sink with no flushing rim for hygiene purposes, a large-dimension wash basin, a hand wash basin, spacious work and storage surfaces, as well as plenty of cabinet storage – creating an ideal work environment in the utility room. There is space for everything to get hygienically clean here, providing safety for staff and patients.
For more product information please contact your sales partner.
The SAN 20 W is an all-in-one system incorporating a cleaning and disinfection appliance, a slop sink unit, a large-dimension wash basin and a roomy cupboard space. With everything neatly contained under the counter, there's plenty of room left to mount bedpan and urine bottle racks on the wall. That keeps clean care utensils safely out of the way of work and protects them from re-contamination with dangerous hospital pathogens. The wash basin is inset and extra large.
For more product information please contact your sales partner.
This model shows how finding the right appliance is not just about making sure the size is right, but also getting all the features you need. This combined care unit is large on features and small on dimensions. Combining a soak sink and hand wash basin with our cleaning and disinfection appliance provides better safety and higher hygiene standards in the hospital and utility room. This combined care unit also offers hygiene safety and outstanding ergonomics, creating optimal working conditions in the care environment.
A cabinet cleaning and disinfection appliance along with complementary items make a combined care unit with cutting-edge technology (for hygiene safety and short programme cycles), incorporating an integrated slop sink with no flushing rim for hygiene purposes, a large-dimension wash basin, a hand wash basin, spacious work and storage surfaces, as well as plenty of cabinet storage – creating an ideal work environment in the utility room. There is space for everything to get hygienically clean here, providing safety for staff and patients.
For more product information please contact your sales partner.
It is the ideal combined care unit if you are looking for more storage or work surfaces in the utility room. Slop sink unit, hand wash basin and additional cupboard space are all included with this cleaning and disinfection appliance to form a practical and holistic cleaning and disinfection system. That means you get everything you need in one compact, 1.90-metre-long package. The cleaning and disinfection appliance assures hygiene safety even with short programme cycle times.
It is the ideal combined care unit if you are looking for more storage or work surfaces in the utility room. Slop sink unit, hand wash basin and additional cupboard space are all included with this cleaning and disinfection appliance to form a practical and holistic cleaning and disinfection system. That means you get everything you need in one compact, 1.90-metre-long package. The cleaning and disinfection appliance assures hygiene safety even with short programme cycle times.
This model shows how finding the right appliance is not just about making sure the size is right, but also getting all the features you need. This combined care unit is large on features and small on dimensions. Combining a soak sink and hand wash basin with our cleaning and disinfection appliance provides better safety and higher hygiene standards in the hospital and utility room. This combined care unit also offers hygiene safety and outstanding ergonomics, creating optimal working conditions in the care environment.
The cleaning and disinfection appliance fits into a multifunctional utility room concept with a hygienic slop sink unit, hand wash basin, an additional large wash basin and plenty of work surface space as well as incredibly generous storage space. This integrated cleaning and disinfection appliance features an adjustable A0 value control system in line with DIN EN ISO 15883 and helps ensure hygiene safety in care homes and hospitals. The hygienic slop sink unit is, of course, made from stainless steel with no flushing rim.
For more product information please contact your sales partner.
With slop sink unit and hand wash basin.
A unit featuring an integrated slop sink unit and hand wash basin for the highest possible hygiene standards – in the smallest possible space. The height of the work surface has been positioned based on ergonomic considerations so as to provide a pleasant work environment that is conducive to good employee health.
The slop sink unit comes without a flushing rim, eliminating the gap that could otherwise provide a breeding ground for germs and biofilms. It comes with spiral flushing. This system uses two self-cleaning and easily replaced nozzles to generate water jets.
For further product information, please contact your sales partner.
A real all-rounder: the SAN 14 B incorporates a practical slop sink unit for hygiene purposes and a hand wash basin, creating the perfect unit for promoting good hygiene standards, especially hand hygiene. That greatly reduces the risk of hospital-acquired infections spreading from utility rooms. This combined care unit measures 1.40 m in width, saving space and creating room for additional modules mounted on the wall.
For more product information please contact your sales partner.
The SAN 20 W is an all-in-one system incorporating a cleaning and disinfection appliance, a slop sink unit, a large-dimension wash basin and a roomy cupboard space. With everything neatly contained under the counter, there's plenty of room left to mount bedpan and urine bottle racks on the wall. That keeps clean care utensils safely out of the way of work and protects them from re-contamination with dangerous hospital pathogens. The wash basin is inset and extra large.
For more product information please contact your sales partner.
This model shows how finding the right appliance is not just about making sure the size is right, but also getting all the features you need. This combined care unit is large on features and small on dimensions. Combining a soak sink and hand wash basin with our cleaning and disinfection appliance provides better safety and higher hygiene standards in the hospital and utility room. This combined care unit also offers hygiene safety and outstanding ergonomics, creating optimal working conditions in the care environment.
A real all-rounder: the SAN 14 B incorporates a practical slop sink unit for hygiene purposes and a hand wash basin, creating the perfect unit for promoting good hygiene standards, especially hand hygiene. That greatly reduces the risk of hospital-acquired infections spreading from utility rooms. This combined care unit measures 1.40 m in width, saving space and creating room for additional modules mounted on the wall.
For more product information please contact your sales partner.
The heavyweight of the combined care units: this washer-disinfector is best as part of a multifunctional dirty utility room concept with a slop sink unit with no flushing rim, a hand wash basin with a large soak sink, and plenty of work surface space as well as incredibly generous storage space.
For more product information please contact your sales partner.
The heavyweight of the combined care units: this washer-disinfector is best as part of a multifunctional dirty utility room concept with a slop sink unit with no flushing rim, a hand wash basin with a large soak sink, and plenty of work surface space as well as incredibly generous storage space.
For more product information please contact your sales partner.
When space is a squeeze, this compact combined care unit comes into its own.Combine the SAN 14 with a TopLine 40, for example, to create a clever solution with a slop sink unit, a cabinet cleaning and disinfection appliance and a handy table top. That gives you plenty of room to get the job done, even in small utility rooms. The cleaning and disinfection appliance assures hygiene safety. The slop sink unit for hygiene purposes comes without a flushing rim, eliminating the gap that could otherwise provide a breeding ground for waterborne bacteria and biofilms.
For more product information please contact your sales partner.
The SAN 20 W is an all-in-one system incorporating a cleaning and disinfection appliance, a slop sink unit, a large-dimension wash basin and a roomy cupboard space. With everything neatly contained under the counter, there's plenty of room left to mount bedpan and urine bottle racks on the wall. That keeps clean care utensils safely out of the way of work and protects them from re-contamination with dangerous hospital pathogens. The wash basin is inset and extra large.
For more product information please contact your sales partner.
A cabinet cleaning and disinfection appliance along with complementary items make a combined care unit with cutting-edge technology (for hygiene safety and short programme cycles), incorporating an integrated slop sink with no flushing rim for hygiene purposes, a large-dimension wash basin, a hand wash basin, spacious work and storage surfaces, as well as plenty of cabinet storage – creating an ideal work environment in the utility room. There is space for everything to get hygienically clean here, providing safety for staff and patients.
For more product information please contact your sales partner.
Depending on your needs, this model can incorporate a bedpan washer-disinfector, work surfaces, slop sink and hand wash basin.
A compact combo unit offering powerful performance – that's what you get when you choose this automatic bedpan flusher-disinfector embedded in a custom combined sluice unit of your choice. Simply add a work surface, hygienic slop sink, and hand wash basin – plus whatever cupboard space you need – and enjoy an outstandingly compact unit that maximises hygiene in your day-to-day work. This system helps prevent the spread of dangerous bacteria which could lead to hospital-acquired infections. Simply pop it in place, connect it up, and it's ready to use! With its built-in TOPIC automatic bedpan flusher-disinfector, this combined sluice unit can also be upgraded and expanded at a later point in time, for example by adding additional cupboards, more work surface space, a larger sink or additional shelving for storing bedpans, urine bottles, kidney bowls or children's potties.
The TOPIC automatic bedpan flusher-disinfector is quick and easy to install and features both thermal and acoustic insulation, making it a convenient and hygienic choice for care homes and nursing facilities.
It is the ideal combined care unit if you are looking for more storage or work surfaces in the utility room. Slop sink unit, hand wash basin and additional cupboard space are all included with this cleaning and disinfection appliance to form a practical and holistic cleaning and disinfection system. That means you get everything you need in one compact, 1.90-metre-long package. The cleaning and disinfection appliance assures hygiene safety even with short programme cycle times.
The SAN 20 W is an all-in-one system incorporating a cleaning and disinfection appliance, a slop sink unit, a large-dimension wash basin and a roomy cupboard space. With everything neatly contained under the counter, there's plenty of room left to mount bedpan and urine bottle racks on the wall. That keeps clean care utensils safely out of the way of work and protects them from re-contamination with dangerous hospital pathogens. The wash basin is inset and extra large.
For more product information please contact your sales partner.
When space is a squeeze, this compact combined care unit comes into its own.Combine the SAN 14 with a TopLine 40, for example, to create a clever solution with a slop sink unit, a cabinet cleaning and disinfection appliance and a handy table top. That gives you plenty of room to get the job done, even in small utility rooms. The cleaning and disinfection appliance assures hygiene safety. The slop sink unit for hygiene purposes comes without a flushing rim, eliminating the gap that could otherwise provide a breeding ground for waterborne bacteria and biofilms.
For more product information please contact your sales partner.
This combined care unit offers even more than cutting edge cleaning and disinfection technology by MEIKO. That, plus a slop sink unit with no flushing rim, a generous soak sink and a hand wash basin will cover every one of your hygiene needs. Not to mention the spacious work and storage surfaces, or even the roomy storage space in the cabinet. Everything has its proper place here.
For more product information please contact your sales partner.
It is the ideal combined care unit if you are looking for more storage or work surfaces in the utility room. Slop sink unit, hand wash basin and additional cupboard space are all included with this cleaning and disinfection appliance to form a practical and holistic cleaning and disinfection system. That means you get everything you need in one compact, 1.90-metre-long package. The cleaning and disinfection appliance assures hygiene safety even with short programme cycle times.
This model shows how finding the right appliance is not just about making sure the size is right, but also getting all the features you need. This combined care unit is large on features and small on dimensions. Combining a soak sink and hand wash basin with our cleaning and disinfection appliance provides better safety and higher hygiene standards in the hospital and utility room. This combined care unit also offers hygiene safety and outstanding ergonomics, creating optimal working conditions in the care environment.
The heavyweight of the combined care units: this washer-disinfector is best as part of a multifunctional dirty utility room concept with a slop sink unit with no flushing rim, a hand wash basin with a large soak sink, and plenty of work surface space as well as incredibly generous storage space.
For more product information please contact your sales partner.
With slop sink unit.
When space is a squeeze, this compact combined care unit comes into its own. It gives you plenty of room and work surface to get the job done, even in a small utility room.
The slop sink unit comes without a flushing rim, eliminating the gap that could otherwise provide a breeding ground for germs and biofilms. It comes with spiral flushing. This system uses two self-cleaning and easily replaced nozzles to generate water jets.
By including additional modules like drying or storage shelves, it is quick and easy to turn this unit into a small professional cleaning station.
For further product information, please contact your sales partner.
This combined care unit offers even more than cutting edge cleaning and disinfection technology by MEIKO. That, plus a slop sink unit with no flushing rim, a generous soak sink and a hand wash basin will cover every one of your hygiene needs. Not to mention the spacious work and storage surfaces, or even the roomy storage space in the cabinet. Everything has its proper place here.
For more product information please contact your sales partner.
A real all-rounder: the SAN 14 B incorporates a practical slop sink unit for hygiene purposes and a hand wash basin, creating the perfect unit for promoting good hygiene standards, especially hand hygiene. That greatly reduces the risk of hospital-acquired infections spreading from utility rooms. This combined care unit measures 1.40 m in width, saving space and creating room for additional modules mounted on the wall.
For more product information please contact your sales partner.
It is the ideal combined care unit if you are looking for more storage or work surfaces in the utility room. Slop sink unit, hand wash basin and additional cupboard space are all included with this cleaning and disinfection appliance to form a practical and holistic cleaning and disinfection system. That means you get everything you need in one compact, 1.90-metre-long package. The cleaning and disinfection appliance assures hygiene safety even with short programme cycle times.
Depending on your needs, this model can incorporate a bedpan washer-disinfector, work surfaces, slop sink and hand wash basin.
A compact combo unit offering powerful performance – that's what you get when you choose this automatic bedpan flusher-disinfector embedded in a custom combined sluice unit of your choice. Simply add a work surface, hygienic slop sink, and hand wash basin – plus whatever cupboard space you need – and enjoy an outstandingly compact unit that maximises hygiene in your day-to-day work. This system helps prevent the spread of dangerous bacteria which could lead to hospital-acquired infections. Simply pop it in place, connect it up, and it's ready to use! With its built-in TOPIC automatic bedpan flusher-disinfector, this combined sluice unit can also be upgraded and expanded at a later point in time, for example by adding additional cupboards, more work surface space, a larger sink or additional shelving for storing bedpans, urine bottles, kidney bowls or children's potties.
The TOPIC automatic bedpan flusher-disinfector is quick and easy to install and features both thermal and acoustic insulation, making it a convenient and hygienic choice for care homes and nursing facilities.
The large size makes this option incredibly versatile: soak sink, hand wash basin and MEIKO washer-disinfector come together to provide the highest standards of hygiene, plus a base cabinet for additional storage space, generous work surfaces for more space to get the job done and improved workplace ergonomics.
The slop sink unit does not use a flushing rim and it is made from 100% stainless steel. It comes with spiral flushing. This system uses two self-cleaning and easily replaced nozzles to generate water jets.
A real all-rounder: the SAN 14 B incorporates a practical slop sink unit for hygiene purposes and a hand wash basin, creating the perfect unit for promoting good hygiene standards, especially hand hygiene. That greatly reduces the risk of hospital-acquired infections spreading from utility rooms. This combined care unit measures 1.40 m in width, saving space and creating room for additional modules mounted on the wall.
For more product information please contact your sales partner.
The SAN 20 W is an all-in-one system incorporating a cleaning and disinfection appliance, a slop sink unit, a large-dimension wash basin and a roomy cupboard space. With everything neatly contained under the counter, there's plenty of room left to mount bedpan and urine bottle racks on the wall. That keeps clean care utensils safely out of the way of work and protects them from re-contamination with dangerous hospital pathogens. The wash basin is inset and extra large.
For more product information please contact your sales partner.
When space is a squeeze, this compact combined care unit comes into its own.Combine the SAN 14 with a TopLine 40, for example, to create a clever solution with a slop sink unit, a cabinet cleaning and disinfection appliance and a handy table top. That gives you plenty of room to get the job done, even in small utility rooms. The cleaning and disinfection appliance assures hygiene safety. The slop sink unit for hygiene purposes comes without a flushing rim, eliminating the gap that could otherwise provide a breeding ground for waterborne bacteria and biofilms.
For more product information please contact your sales partner.
A real all-rounder: the SAN 14 B incorporates a practical slop sink unit for hygiene purposes and a hand wash basin, creating the perfect unit for promoting good hygiene standards, especially hand hygiene. That greatly reduces the risk of hospital-acquired infections spreading from utility rooms. This combined care unit measures 1.40 m in width, saving space and creating room for additional modules mounted on the wall.
For more product information please contact your sales partner.
This combined care unit offers even more than cutting edge cleaning and disinfection technology by MEIKO. That, plus a slop sink unit with no flushing rim, a generous soak sink and a hand wash basin will cover every one of your hygiene needs. Not to mention the spacious work and storage surfaces, or even the roomy storage space in the cabinet. Everything has its proper place here.
For more product information please contact your sales partner.
The large size makes this option incredibly versatile: soak sink, hand wash basin and MEIKO washer-disinfector come together to provide the highest standards of hygiene, plus a base cabinet for additional storage space, generous work surfaces for more space to get the job done and improved workplace ergonomics.
The slop sink unit does not use a flushing rim and it is made from 100% stainless steel. It comes with spiral flushing. This system uses two self-cleaning and easily replaced nozzles to generate water jets.
For more product information please contact your sales partner.
An extra large inset wash basin is combined with a slop sink unit, a base cabinet and a MEIKO washer-disinfector. The result is a truly practical, clean solution well suited to the real world and to any dirty utility room.
Since this is a cabinet solution, it provides plenty of space for drying and storage racks which can be installed above the unit. This means that clean care utensils can be unloaded in double-quick time and are better protected from recontamination with pathogens.
The slop sink unit does not use a flushing rim and it is made from 100% stainless steel. It comes with spiral flushing. This system uses two self-cleaning and easily replaced nozzles to generate water jets.
For more product information please contact your sales partner.
When space is a squeeze, this compact combined care unit comes into its own.Combine the SAN 14 with a TopLine 40, for example, to create a clever solution with a slop sink unit, a cabinet cleaning and disinfection appliance and a handy table top. That gives you plenty of room to get the job done, even in small utility rooms. The cleaning and disinfection appliance assures hygiene safety. The slop sink unit for hygiene purposes comes without a flushing rim, eliminating the gap that could otherwise provide a breeding ground for waterborne bacteria and biofilms.
For more product information please contact your sales partner.
It is the ideal combined care unit if you are looking for more storage or work surfaces in the utility room. Slop sink unit, hand wash basin and additional cupboard space are all included with this cleaning and disinfection appliance to form a practical and holistic cleaning and disinfection system. That means you get everything you need in one compact, 1.90-metre-long package. The cleaning and disinfection appliance assures hygiene safety even with short programme cycle times.
Depending on your needs, this model can incorporate a bedpan washer-disinfector, work surfaces, slop sink and hand wash basin.
A compact combo unit offering powerful performance – that's what you get when you choose this automatic bedpan flusher-disinfector embedded in a custom combined sluice unit of your choice. Simply add a work surface, hygienic slop sink, and hand wash basin – plus whatever cupboard space you need – and enjoy an outstandingly compact unit that maximises hygiene in your day-to-day work. This system helps prevent the spread of dangerous bacteria which could lead to hospital-acquired infections. Simply pop it in place, connect it up, and it's ready to use! With its built-in TOPIC automatic bedpan flusher-disinfector, this combined sluice unit can also be upgraded and expanded at a later point in time, for example by adding additional cupboards, more work surface space, a larger sink or additional shelving for storing bedpans, urine bottles, kidney bowls or children's potties.
The TOPIC automatic bedpan flusher-disinfector is quick and easy to install and features both thermal and acoustic insulation, making it a convenient and hygienic choice for care homes and nursing facilities.
When space is a squeeze, this compact combined care unit comes into its own.Combine the SAN 14 with a TopLine 40, for example, to create a clever solution with a slop sink unit, a cabinet cleaning and disinfection appliance and a handy table top. That gives you plenty of room to get the job done, even in small utility rooms. The cleaning and disinfection appliance assures hygiene safety. The slop sink unit for hygiene purposes comes without a flushing rim, eliminating the gap that could otherwise provide a breeding ground for waterborne bacteria and biofilms.
For more product information please contact your sales partner.
This is the ideal combination if you are looking for more storage or work surfaces in the dirty utility room. An integrated slop sink unit, wash basin and base cabinet make this an incredibly practical and versatile bedpan washing system.
The slop sink unit does not use a flushing rim and it is made from 100% stainless steel. It comes with spiral flushing. This system uses two self-cleaning and easily replaced nozzles to generate water jets.
Depending on your needs, this model can incorporate a bedpan washer-disinfector, work surfaces, slop sink and hand wash basin.
A compact combo unit offering powerful performance – that's what you get when you choose this automatic bedpan flusher-disinfector embedded in a custom combined sluice unit of your choice. Simply add a work surface, hygienic slop sink, and hand wash basin – plus whatever cupboard space you need – and enjoy an outstandingly compact unit that maximises hygiene in your day-to-day work. This system helps prevent the spread of dangerous bacteria which could lead to hospital-acquired infections. Simply pop it in place, connect it up, and it's ready to use! With its built-in TOPIC automatic bedpan flusher-disinfector, this combined sluice unit can also be upgraded and expanded at a later point in time, for example by adding additional cupboards, more work surface space, a larger sink or additional shelving for storing bedpans, urine bottles, kidney bowls or children's potties.
The TOPIC automatic bedpan flusher-disinfector is quick and easy to install and features both thermal and acoustic insulation, making it a convenient and hygienic choice for care homes and nursing facilities.
A real all-rounder: the SAN 14 B incorporates a practical slop sink unit for hygiene purposes and a hand wash basin, creating the perfect unit for promoting good hygiene standards, especially hand hygiene. That greatly reduces the risk of hospital-acquired infections spreading from utility rooms. This combined care unit measures 1.40 m in width, saving space and creating room for additional modules mounted on the wall.
For more product information please contact your sales partner.
The large size makes this option incredibly versatile: soak sink, hand wash basin and MEIKO washer-disinfector come together to provide the highest standards of hygiene, plus a base cabinet for additional storage space, generous work surfaces for more space to get the job done and improved workplace ergonomics.
The slop sink unit does not use a flushing rim and it is made from 100% stainless steel. It comes with spiral flushing. This system uses two self-cleaning and easily replaced nozzles to generate water jets.
An extra large inset wash basin is combined with a slop sink unit, a base cabinet and a MEIKO washer-disinfector. The result is a truly practical, clean solution well suited to the real world and to any dirty utility room.
Since this is a cabinet solution, it provides plenty of space for drying and storage racks which can be installed above the unit. This means that clean care utensils can be unloaded in double-quick time and are better protected from recontamination with pathogens.
The slop sink unit does not use a flushing rim and it is made from 100% stainless steel. It comes with spiral flushing. This system uses two self-cleaning and easily replaced nozzles to generate water jets.
For more product information please contact your sales partner.
Depending on your needs, this model can incorporate a bedpan washer-disinfector, work surfaces, slop sink and hand wash basin.
A compact combo unit offering powerful performance – that's what you get when you choose this automatic bedpan flusher-disinfector embedded in a custom combined sluice unit of your choice. Simply add a work surface, hygienic slop sink, and hand wash basin – plus whatever cupboard space you need – and enjoy an outstandingly compact unit that maximises hygiene in your day-to-day work. This system helps prevent the spread of dangerous bacteria which could lead to hospital-acquired infections. Simply pop it in place, connect it up, and it's ready to use! With its built-in TOPIC automatic bedpan flusher-disinfector, this combined sluice unit can also be upgraded and expanded at a later point in time, for example by adding additional cupboards, more work surface space, a larger sink or additional shelving for storing bedpans, urine bottles, kidney bowls or children's potties.
The TOPIC automatic bedpan flusher-disinfector is quick and easy to install and features both thermal and acoustic insulation, making it a convenient and hygienic choice for care homes and nursing facilities.
A unit featuring an integrated slop sink unit and hand wash basin for the highest possible hygiene standards – in the smallest possible space. The height of the work surface has been positioned based on ergonomic considerations so as to provide a pleasant work environment that is conducive to good employee health.
The slop sink unit comes without a flushing rim, eliminating the gap that could otherwise provide a breeding ground for germs and biofilms. It comes with spiral flushing. This system uses two self-cleaning and easily replaced nozzles to generate water jets.
For more product information please contact your sales partner.
When space is a squeeze, this compact combined care unit comes into its own.Combine the SAN 14 with a TopLine 40, for example, to create a clever solution with a slop sink unit, a cabinet cleaning and disinfection appliance and a handy table top. That gives you plenty of room to get the job done, even in small utility rooms. The cleaning and disinfection appliance assures hygiene safety. The slop sink unit for hygiene purposes comes without a flushing rim, eliminating the gap that could otherwise provide a breeding ground for waterborne bacteria and biofilms.
For more product information please contact your sales partner.
An extra large inset wash basin is combined with a slop sink unit, a base cabinet and a MEIKO washer-disinfector. The result is a truly practical, clean solution well suited to the real world and to any dirty utility room.
Since this is a cabinet solution, it provides plenty of space for drying and storage racks which can be installed above the unit. This means that clean care utensils can be unloaded in double-quick time and are better protected from recontamination with pathogens.
The slop sink unit does not use a flushing rim and it is made from 100% stainless steel. It comes with spiral flushing. This system uses two self-cleaning and easily replaced nozzles to generate water jets.
For more product information please contact your sales partner.
This is the ideal combination if you are looking for more storage or work surfaces in the dirty utility room. An integrated slop sink unit, wash basin and base cabinet make this an incredibly practical and versatile bedpan washing system.
The slop sink unit does not use a flushing rim and it is made from 100% stainless steel. It comes with spiral flushing. This system uses two self-cleaning and easily replaced nozzles to generate water jets.
For more product information please contact your sales partner.
When space is a squeeze, this compact combined care unit comes into its own. That gives you plenty of room and work surface to get the job done, even in small dirty utility rooms.
The slop sink unit comes without a flushing rim, eliminating the gap that could otherwise provide a breeding ground for germs and biofilms. It comes with spiral flushing. This system uses two self-cleaning and easily replaced nozzles to generate water jets.
By including additional modules like drying or storage shelves, it is quick and easy to turn this unit into a small professional cleaning station.
For more product information please contact your sales partner.
Depending on your needs, this model can incorporate a bedpan washer-disinfector, work surfaces, slop sink and hand wash basin.
A compact combo unit offering powerful performance – that's what you get when you choose this automatic bedpan flusher-disinfector embedded in a custom combined sluice unit of your choice. Simply add a work surface, hygienic slop sink, and hand wash basin – plus whatever cupboard space you need – and enjoy an outstandingly compact unit that maximises hygiene in your day-to-day work. This system helps prevent the spread of dangerous bacteria which could lead to hospital-acquired infections. Simply pop it in place, connect it up, and it's ready to use! With its built-in TOPIC automatic bedpan flusher-disinfector, this combined sluice unit can also be upgraded and expanded at a later point in time, for example by adding additional cupboards, more work surface space, a larger sink or additional shelving for storing bedpans, urine bottles, kidney bowls or children's potties.
The TOPIC automatic bedpan flusher-disinfector is quick and easy to install and features both thermal and acoustic insulation, making it a convenient and hygienic choice for care homes and nursing facilities.
This is the ideal combination if you are looking for more storage or work surfaces in the dirty utility room. An integrated slop sink unit, wash basin and base cabinet make this an incredibly practical and versatile bedpan washing system.
The slop sink unit does not use a flushing rim and it is made from 100% stainless steel. It comes with spiral flushing. This system uses two self-cleaning and easily replaced nozzles to generate water jets.
A unit featuring an integrated slop sink unit and hand wash basin for the highest possible hygiene standards – in the smallest possible space. The height of the work surface has been positioned based on ergonomic considerations so as to provide a pleasant work environment that is conducive to good employee health.
The slop sink unit comes without a flushing rim, eliminating the gap that could otherwise provide a breeding ground for germs and biofilms. It comes with spiral flushing. This system uses two self-cleaning and easily replaced nozzles to generate water jets.
For more product information please contact your sales partner.
A unit featuring an integrated slop sink unit and hand wash basin for the highest possible hygiene standards – in the smallest possible space. The height of the work surface has been positioned based on ergonomic considerations so as to provide a pleasant work environment that is conducive to good employee health.
The slop sink unit comes without a flushing rim, eliminating the gap that could otherwise provide a breeding ground for germs and biofilms. It comes with spiral flushing. This system uses two self-cleaning and easily replaced nozzles to generate water jets.
For more product information please contact your sales partner.
When space is a squeeze, this compact combined care unit comes into its own. That gives you plenty of room and work surface to get the job done, even in small dirty utility rooms.
The slop sink unit comes without a flushing rim, eliminating the gap that could otherwise provide a breeding ground for germs and biofilms. It comes with spiral flushing. This system uses two self-cleaning and easily replaced nozzles to generate water jets.
By including additional modules like drying or storage shelves, it is quick and easy to turn this unit into a small professional cleaning station.
For more product information please contact your sales partner.
Depending on your needs, this model can incorporate a bedpan washer-disinfector, work surfaces, slop sink and hand wash basin.
A compact combo unit offering powerful performance – that's what you get when you choose this automatic bedpan flusher-disinfector embedded in a custom combined sluice unit of your choice. Simply add a work surface, hygienic slop sink, and hand wash basin – plus whatever cupboard space you need – and enjoy an outstandingly compact unit that maximises hygiene in your day-to-day work. This system helps prevent the spread of dangerous bacteria which could lead to hospital-acquired infections. Simply pop it in place, connect it up, and it's ready to use! With its built-in TOPIC automatic bedpan flusher-disinfector, this combined sluice unit can also be upgraded and expanded at a later point in time, for example by adding additional cupboards, more work surface space, a larger sink or additional shelving for storing bedpans, urine bottles, kidney bowls or children's potties.
The TOPIC automatic bedpan flusher-disinfector is quick and easy to install and features both thermal and acoustic insulation, making it a convenient and hygienic choice for care homes and nursing facilities.
The cleaning and disinfection appliance fits into a multifunctional utility room concept with a hygienic slop sink unit, hand wash basin, an additional large wash basin and plenty of work surface space as well as incredibly generous storage space. This integrated cleaning and disinfection appliance features an adjustable A0 value control system in line with DIN EN ISO 15883 and helps ensure hygiene safety in care homes and hospitals. The hygienic slop sink unit is, of course, made from stainless steel with no flushing rim.
For more product information please contact your sales partner.
When space is a squeeze, this compact combined care unit comes into its own. That gives you plenty of room and work surface to get the job done, even in small dirty utility rooms.
The slop sink unit comes without a flushing rim, eliminating the gap that could otherwise provide a breeding ground for germs and biofilms. It comes with spiral flushing. This system uses two self-cleaning and easily replaced nozzles to generate water jets.
By including additional modules like drying or storage shelves, it is quick and easy to turn this unit into a small professional cleaning station.
For more product information please contact your sales partner.
The cleaning and disinfection appliance fits into a multifunctional utility room concept with a hygienic slop sink unit, hand wash basin, an additional large wash basin and plenty of work surface space as well as incredibly generous storage space. This integrated cleaning and disinfection appliance features an adjustable A0 value control system in line with DIN EN ISO 15883 and helps ensure hygiene safety in care homes and hospitals. The hygienic slop sink unit is, of course, made from stainless steel with no flushing rim.
For more product information please contact your sales partner.
A cabinet cleaning and disinfection appliance along with complementary items make a combined care unit with cutting-edge technology (for hygiene safety and short programme cycles), incorporating an integrated slop sink with no flushing rim for hygiene purposes, a large-dimension wash basin, a hand wash basin, spacious work and storage surfaces, as well as plenty of cabinet storage – creating an ideal work environment in the utility room. There is space for everything to get hygienically clean here, providing safety for staff and patients.
For more product information please contact your sales partner.
A cabinet cleaning and disinfection appliance along with complementary items make a combined care unit with cutting-edge technology (for hygiene safety and short programme cycles), incorporating an integrated slop sink with no flushing rim for hygiene purposes, a large-dimension wash basin, a hand wash basin, spacious work and storage surfaces, as well as plenty of cabinet storage – creating an ideal work environment in the utility room. There is space for everything to get hygienically clean here, providing safety for staff and patients.
For more product information please contact your sales partner.
Depending on your needs, this model can incorporate a bedpan washer-disinfector, work surfaces, slop sink and hand wash basin.
A compact combo unit offering powerful performance – that's what you get when you choose this automatic bedpan flusher-disinfector embedded in a custom combined sluice unit of your choice. Simply add a work surface, hygienic slop sink, and hand wash basin – plus whatever cupboard space you need – and enjoy an outstandingly compact unit that maximises hygiene in your day-to-day work. This system helps prevent the spread of dangerous bacteria which could lead to hospital-acquired infections. Simply pop it in place, connect it up, and it's ready to use! With its built-in TOPIC automatic bedpan flusher-disinfector, this combined sluice unit can also be upgraded and expanded at a later point in time, for example by adding additional cupboards, more work surface space, a larger sink or additional shelving for storing bedpans, urine bottles, kidney bowls or children's potties.
The TOPIC automatic bedpan flusher-disinfector is quick and easy to install and features both thermal and acoustic insulation, making it a convenient and hygienic choice for care homes and nursing facilities.
This model shows how finding the right appliance is not just about making sure the size is right, but also getting all the features you need. This combined care unit is large on features and small on dimensions. Combining a soak sink and hand wash basin with our cleaning and disinfection appliance provides better safety and higher hygiene standards in the hospital and utility room. This combined care unit also offers hygiene safety and outstanding ergonomics, creating optimal working conditions in the care environment.
This model shows how finding the right appliance is not just about making sure the size is right, but also getting all the features you need. This combined care unit is large on features and small on dimensions. Combining a soak sink and hand wash basin with our cleaning and disinfection appliance provides better safety and higher hygiene standards in the hospital and utility room. This combined care unit also offers hygiene safety and outstanding ergonomics, creating optimal working conditions in the care environment.
The SAN 20 W is an all-in-one system incorporating a cleaning and disinfection appliance, a slop sink unit, a large-dimension wash basin and a roomy cupboard space. With everything neatly contained under the counter, there's plenty of room left to mount bedpan and urine bottle racks on the wall. That keeps clean care utensils safely out of the way of work and protects them from re-contamination with dangerous hospital pathogens. The wash basin is inset and extra large.
For more product information please contact your sales partner.
The SAN 20 W is an all-in-one system incorporating a cleaning and disinfection appliance, a slop sink unit, a large-dimension wash basin and a roomy cupboard space. With everything neatly contained under the counter, there's plenty of room left to mount bedpan and urine bottle racks on the wall. That keeps clean care utensils safely out of the way of work and protects them from re-contamination with dangerous hospital pathogens. The wash basin is inset and extra large.
For more product information please contact your sales partner.
It is the ideal combined care unit if you are looking for more storage or work surfaces in the utility room. Slop sink unit, hand wash basin and additional cupboard space are all included with this cleaning and disinfection appliance to form a practical and holistic cleaning and disinfection system. That means you get everything you need in one compact, 1.90-metre-long package. The cleaning and disinfection appliance assures hygiene safety even with short programme cycle times.
A real all-rounder: the SAN 14 B incorporates a practical slop sink unit for hygiene purposes and a hand wash basin, creating the perfect unit for promoting good hygiene standards, especially hand hygiene. That greatly reduces the risk of hospital-acquired infections spreading from utility rooms. This combined care unit measures 1.40 m in width, saving space and creating room for additional modules mounted on the wall.
For more product information please contact your sales partner.
It is the ideal combined care unit if you are looking for more storage or work surfaces in the utility room. Slop sink unit, hand wash basin and additional cupboard space are all included with this cleaning and disinfection appliance to form a practical and holistic cleaning and disinfection system. That means you get everything you need in one compact, 1.90-metre-long package. The cleaning and disinfection appliance assures hygiene safety even with short programme cycle times.
When space is a squeeze, this compact combined care unit comes into its own.Combine the SAN 14 with a TopLine 40, for example, to create a clever solution with a slop sink unit, a cabinet cleaning and disinfection appliance and a handy table top. That gives you plenty of room to get the job done, even in small utility rooms. The cleaning and disinfection appliance assures hygiene safety. The slop sink unit for hygiene purposes comes without a flushing rim, eliminating the gap that could otherwise provide a breeding ground for waterborne bacteria and biofilms.
For more product information please contact your sales partner.
The heavyweight of the combined care units: this washer-disinfector is best as part of a multifunctional dirty utility room concept with a slop sink unit with no flushing rim, a hand wash basin with a large soak sink, and plenty of work surface space as well as incredibly generous storage space.
For more product information please contact your sales partner.
A real all-rounder: the SAN 14 B incorporates a practical slop sink unit for hygiene purposes and a hand wash basin, creating the perfect unit for promoting good hygiene standards, especially hand hygiene. That greatly reduces the risk of hospital-acquired infections spreading from utility rooms. This combined care unit measures 1.40 m in width, saving space and creating room for additional modules mounted on the wall.
For more product information please contact your sales partner.
Depending on your needs, this model can incorporate a bedpan washer-disinfector, work surfaces, slop sink and hand wash basin.
A compact combo unit offering powerful performance – that's what you get when you choose this automatic bedpan flusher-disinfector embedded in a custom combined sluice unit of your choice. Simply add a work surface, hygienic slop sink, and hand wash basin – plus whatever cupboard space you need – and enjoy an outstandingly compact unit that maximises hygiene in your day-to-day work. This system helps prevent the spread of dangerous bacteria which could lead to hospital-acquired infections. Simply pop it in place, connect it up, and it's ready to use! With its built-in TOPIC automatic bedpan flusher-disinfector, this combined sluice unit can also be upgraded and expanded at a later point in time, for example by adding additional cupboards, more work surface space, a larger sink or additional shelving for storing bedpans, urine bottles, kidney bowls or children's potties.
The TOPIC automatic bedpan flusher-disinfector is quick and easy to install and features both thermal and acoustic insulation, making it a convenient and hygienic choice for care homes and nursing facilities.
When space is a squeeze, this compact combined care unit comes into its own.Combine the SAN 14 with a TopLine 40, for example, to create a clever solution with a slop sink unit, a cabinet cleaning and disinfection appliance and a handy table top. That gives you plenty of room to get the job done, even in small utility rooms. The cleaning and disinfection appliance assures hygiene safety. The slop sink unit for hygiene purposes comes without a flushing rim, eliminating the gap that could otherwise provide a breeding ground for waterborne bacteria and biofilms.
For more product information please contact your sales partner.
This combined care unit offers even more than cutting edge cleaning and disinfection technology by MEIKO. That, plus a slop sink unit with no flushing rim, a generous soak sink and a hand wash basin will cover every one of your hygiene needs. Not to mention the spacious work and storage surfaces, or even the roomy storage space in the cabinet. Everything has its proper place here.
For more product information please contact your sales partner.
The large size makes this option incredibly versatile: soak sink, hand wash basin and MEIKO washer-disinfector come together to provide the highest standards of hygiene, plus a base cabinet for additional storage space, generous work surfaces for more space to get the job done and improved workplace ergonomics.
The slop sink unit does not use a flushing rim and it is made from 100% stainless steel. It comes with spiral flushing. This system uses two self-cleaning and easily replaced nozzles to generate water jets.
For more product information please contact your sales partner.
An extra large inset wash basin is combined with a slop sink unit, a base cabinet and a MEIKO washer-disinfector. The result is a truly practical, clean solution well suited to the real world and to any dirty utility room.
Since this is a cabinet solution, it provides plenty of space for drying and storage racks which can be installed above the unit. This means that clean care utensils can be unloaded in double-quick time and are better protected from recontamination with pathogens.
The slop sink unit does not use a flushing rim and it is made from 100% stainless steel. It comes with spiral flushing. This system uses two self-cleaning and easily replaced nozzles to generate water jets.
For more product information please contact your sales partner.
This is the ideal combination if you are looking for more storage or work surfaces in the dirty utility room. An integrated slop sink unit, wash basin and base cabinet make this an incredibly practical and versatile bedpan washing system.
The slop sink unit does not use a flushing rim and it is made from 100% stainless steel. It comes with spiral flushing. This system uses two self-cleaning and easily replaced nozzles to generate water jets.
For more product information please contact your sales partner.
This is a combined care unit with jumbo everything: jumbo wash basin, slop sink unit, hand wash basin and large base cabinet with two hinged doors (1,000 x 600 x 760 mm) along with a cutting-edge washer-disinfector.
For further product information, please contact your sales partner.
This combined care unit features a washer-disinfector built into a multifunctional utility room concept with a slop sink unit, hand wash basin, an additional large wash basin and a base cabinet with 3 hinged doors (1,500 x 600 x 760 mm). It provides ample work surface space and generous storage in the utility room.
For further product information, please contact your sales partner.
A unit featuring an integrated slop sink unit and hand wash basin for the highest possible hygiene standards – in the smallest possible space. The height of the work surface has been positioned based on ergonomic considerations so as to provide a pleasant work environment that is conducive to good employee health.
The slop sink unit comes without a flushing rim, eliminating the gap that could otherwise provide a breeding ground for germs and biofilms. It comes with spiral flushing. This system uses two self-cleaning and easily replaced nozzles to generate water jets.
For more product information please contact your sales partner.
This combined care unit includes a washer-disinfector, slop sink unit, large wash basin, base cabinet (600 x 600 x 860 mm) and work surface with an additional hand wash basin. Large dimensions open up all kinds of possibilities in the utility room. For excellent hygiene safety and outstanding ergonomics, creating great working conditions in the care environment.
For further product information, please contact your sales partner.
When space is a squeeze, this compact combined care unit comes into its own. That gives you plenty of room and work surface to get the job done, even in small dirty utility rooms.
The slop sink unit comes without a flushing rim, eliminating the gap that could otherwise provide a breeding ground for germs and biofilms. It comes with spiral flushing. This system uses two self-cleaning and easily replaced nozzles to generate water jets.
By including additional modules like drying or storage shelves, it is quick and easy to turn this unit into a small professional cleaning station.
For more product information please contact your sales partner.
You will love this combined care unit once you experience the extra space in your utility room: it is a clever combination of washer-disinfector, slop sink unit, hand wash basin with base cabinet and ample work surface. Get the full works for diverse applications in a single 1.90-metre-long package.
For further product information, please contact your sales partner.
A cabinet cleaning and disinfection appliance along with complementary items make a combined care unit with cutting-edge technology (for hygiene safety and short programme cycles), incorporating an integrated slop sink with no flushing rim for hygiene purposes, a large-dimension wash basin, a hand wash basin, spacious work and storage surfaces, as well as plenty of cabinet storage – creating an ideal work environment in the utility room. There is space for everything to get hygienically clean here, providing safety for staff and patients.
For more product information please contact your sales partner.
This combined care unit brings together a washer-disinfector with a hand wash basin and a slop sink unit to create a cutting-edge base station for hygiene – ideal for meeting the versatile needs of hospital or care-home care. Plus, with a total width of 1.40 m, it is space saving, creating plenty of room for additional modules mounted on the wall.
For further product information, please contact your sales partner.
The cleaning and disinfection appliance fits into a multifunctional utility room concept with a hygienic slop sink unit, hand wash basin, an additional large wash basin and plenty of work surface space as well as incredibly generous storage space. This integrated cleaning and disinfection appliance features an adjustable A0 value control system in line with DIN EN ISO 15883 and helps ensure hygiene safety in care homes and hospitals. The hygienic slop sink unit is, of course, made from stainless steel with no flushing rim.
For more product information please contact your sales partner.
This model shows how finding the right appliance is not just about making sure the size is right, but also getting all the features you need. This combined care unit is large on features and small on dimensions. Combining a soak sink and hand wash basin with our cleaning and disinfection appliance provides better safety and higher hygiene standards in the hospital and utility room. This combined care unit also offers hygiene safety and outstanding ergonomics, creating optimal working conditions in the care environment.
This compact option is the ideal combined care unit if space is tight: combine the SAN 14 with a MEIKO TopLine 40, for example, to create a clever solution with a slop sink unit, cabinet washer-disinfector, and useful worktop. That gives you plenty of room to get the job done, even in small utility rooms.
For further product information, please contact your sales partner.
The SAN 20 W is an all-in-one system incorporating a cleaning and disinfection appliance, a slop sink unit, a large-dimension wash basin and a roomy cupboard space. With everything neatly contained under the counter, there's plenty of room left to mount bedpan and urine bottle racks on the wall. That keeps clean care utensils safely out of the way of work and protects them from re-contamination with dangerous hospital pathogens. The wash basin is inset and extra large.
For more product information please contact your sales partner.
Depending on your needs, this model can incorporate a bedpan washer-disinfector, work surfaces, slop sink and hand wash basin.
A compact combo unit offering powerful performance – that's what you get when you choose this automatic bedpan flusher-disinfector embedded in a custom combined sluice unit of your choice. Simply add a work surface, hygienic slop sink, and hand wash basin – plus whatever cupboard space you need – and enjoy an outstandingly compact unit that maximises hygiene in your day-to-day work. This system helps prevent the spread of dangerous bacteria which could lead to hospital-acquired infections. Simply pop it in place, connect it up, and it's ready to use! With its built-in TOPIC automatic bedpan flusher-disinfector, this combined sluice unit can also be upgraded and expanded at a later point in time, for example by adding additional cupboards, more work surface space, a larger sink or additional shelving for storing bedpans, urine bottles, kidney bowls or children's potties.
The TOPIC automatic bedpan flusher-disinfector is quick and easy to install and features both thermal and acoustic insulation, making it a convenient and hygienic choice for care homes and nursing facilities.
Depending on your needs, this model can incorporate a bedpan washer-disinfector, work surfaces, slop sink and hand wash basin. A compact combo unit offering powerful performance – that's what you get when you choose this automatic bedpan flusher-disinfector embedded in a custom combined sluice unit of your choice. Simply add a work surface, hygienic slop sink, and hand wash basin – plus whatever cupboard space you need – and enjoy an outstandingly compact unit that maximises hygiene in your day-to-day work. This system helps prevent the spread of dangerous bacteria which could lead to hospital-acquired infections. Simply pop it in place, connect it up, and it's ready to use! With its built-in TOPIC automatic bedpan flusher-disinfector, this combined sluice unit can also be upgraded and expanded at a later point in time, for example by adding additional cupboards, more work surface space, a larger sink or additional shelving for storing bedpans, urine bottles, kidney bowls or children's potties.
The TOPIC automatic bedpan flusher-disinfector is quick and easy to install and features both thermal and acoustic insulation, making it a convenient and hygienic choice for care homes and nursing facilities.
It is the ideal combined care unit if you are looking for more storage or work surfaces in the utility room. Slop sink unit, hand wash basin and additional cupboard space are all included with this cleaning and disinfection appliance to form a practical and holistic cleaning and disinfection system. That means you get everything you need in one compact, 1.90-metre-long package. The cleaning and disinfection appliance assures hygiene safety even with short programme cycle times.
A real all-rounder: the SAN 14 B incorporates a practical slop sink unit for hygiene purposes and a hand wash basin, creating the perfect unit for promoting good hygiene standards, especially hand hygiene. That greatly reduces the risk of hospital-acquired infections spreading from utility rooms. This combined care unit measures 1.40 m in width, saving space and creating room for additional modules mounted on the wall.
For more product information please contact your sales partner.
When space is a squeeze, this compact combined care unit comes into its own.Combine the SAN 14 with a TopLine 40, for example, to create a clever solution with a slop sink unit, a cabinet cleaning and disinfection appliance and a handy table top. That gives you plenty of room to get the job done, even in small utility rooms. The cleaning and disinfection appliance assures hygiene safety. The slop sink unit for hygiene purposes comes without a flushing rim, eliminating the gap that could otherwise provide a breeding ground for waterborne bacteria and biofilms.
For more product information please contact your sales partner.
Depending on your needs, this model can incorporate a bedpan washer-disinfector, work surfaces, slop sink and hand wash basin.
A compact combo unit offering powerful performance – that's what you get when you choose this automatic bedpan flusher-disinfector embedded in a custom combined sluice unit of your choice. Simply add a work surface, hygienic slop sink, and hand wash basin – plus whatever cupboard space you need – and enjoy an outstandingly compact unit that maximises hygiene in your day-to-day work. This system helps prevent the spread of dangerous bacteria which could lead to hospital-acquired infections. Simply pop it in place, connect it up, and it's ready to use! With its built-in TOPIC automatic bedpan flusher-disinfector, this combined sluice unit can also be upgraded and expanded at a later point in time, for example by adding additional cupboards, more work surface space, a larger sink or additional shelving for storing bedpans, urine bottles, kidney bowls or children's potties.
The TOPIC automatic bedpan flusher-disinfector is quick and easy to install and features both thermal and acoustic insulation, making it a convenient and hygienic choice for care homes and nursing facilities.
This combined care unit offers even more than cutting edge cleaning and disinfection technology by MEIKO. That, plus a slop sink unit with no flushing rim, a generous soak sink and a hand wash basin will cover every one of your hygiene needs. Not to mention the spacious work and storage surfaces, or even the roomy storage space in the cabinet. Everything has its proper place here.
For more product information please contact your sales partner.
The heavyweight of the combined care units: this washer-disinfector is best as part of a multifunctional dirty utility room concept with a slop sink unit with no flushing rim, a hand wash basin with a large soak sink, and plenty of work surface space as well as incredibly generous storage space.
For more product information please contact your sales partner.
The large size makes this option incredibly versatile: soak sink, hand wash basin and MEIKO washer-disinfector come together to provide the highest standards of hygiene, plus a base cabinet for additional storage space, generous work surfaces for more space to get the job done and improved workplace ergonomics.
The slop sink unit does not use a flushing rim and it is made from 100% stainless steel. It comes with spiral flushing. This system uses two self-cleaning and easily replaced nozzles to generate water jets.
For more product information please contact your sales partner.
An extra large inset wash basin is combined with a slop sink unit, a base cabinet and a MEIKO washer-disinfector. The result is a truly practical, clean solution well suited to the real world and to any dirty utility room.
Since this is a cabinet solution, it provides plenty of space for drying and storage racks which can be installed above the unit. This means that clean care utensils can be unloaded in double-quick time and are better protected from recontamination with pathogens.
The slop sink unit does not use a flushing rim and it is made from 100% stainless steel. It comes with spiral flushing. This system uses two self-cleaning and easily replaced nozzles to generate water jets.
For more product information please contact your sales partner.
This is the ideal combination if you are looking for more storage or work surfaces in the dirty utility room. An integrated slop sink unit, wash basin and base cabinet make this an incredibly practical and versatile bedpan washing system.
The slop sink unit does not use a flushing rim and it is made from 100% stainless steel. It comes with spiral flushing. This system uses two self-cleaning and easily replaced nozzles to generate water jets.
For more product information please contact your sales partner.
A unit featuring an integrated slop sink unit and hand wash basin for the highest possible hygiene standards – in the smallest possible space. The height of the work surface has been positioned based on ergonomic considerations so as to provide a pleasant work environment that is conducive to good employee health.
The slop sink unit comes without a flushing rim, eliminating the gap that could otherwise provide a breeding ground for germs and biofilms. It comes with spiral flushing. This system uses two self-cleaning and easily replaced nozzles to generate water jets.
For more product information please contact your sales partner.
When space is a squeeze, this compact combined care unit comes into its own. That gives you plenty of room and work surface to get the job done, even in small dirty utility rooms.
The slop sink unit comes without a flushing rim, eliminating the gap that could otherwise provide a breeding ground for germs and biofilms. It comes with spiral flushing. This system uses two self-cleaning and easily replaced nozzles to generate water jets.
By including additional modules like drying or storage shelves, it is quick and easy to turn this unit into a small professional cleaning station.
For more product information please contact your sales partner.
Depending on your needs, this model can incorporate a bedpan washer-disinfector, work surfaces, slop sink and hand wash basin.
A compact combo unit offering powerful performance – that's what you get when you choose this automatic bedpan flusher-disinfector embedded in a custom combined sluice unit of your choice. Simply add a work surface, hygienic slop sink, and hand wash basin – plus whatever cupboard space you need – and enjoy an outstandingly compact unit that maximises hygiene in your day-to-day work. This system helps prevent the spread of dangerous bacteria which could lead to hospital-acquired infections. Simply pop it in place, connect it up, and it's ready to use! With its built-in TOPIC automatic bedpan flusher-disinfector, this combined sluice unit can also be upgraded and expanded at a later point in time, for example by adding additional cupboards, more work surface space, a larger sink or additional shelving for storing bedpans, urine bottles, kidney bowls or children's potties.
The TOPIC automatic bedpan flusher-disinfector is quick and easy to install and features both thermal and acoustic insulation, making it a convenient and hygienic choice for care homes and nursing facilities.






































































































































































































